EasyManua.ls Logo

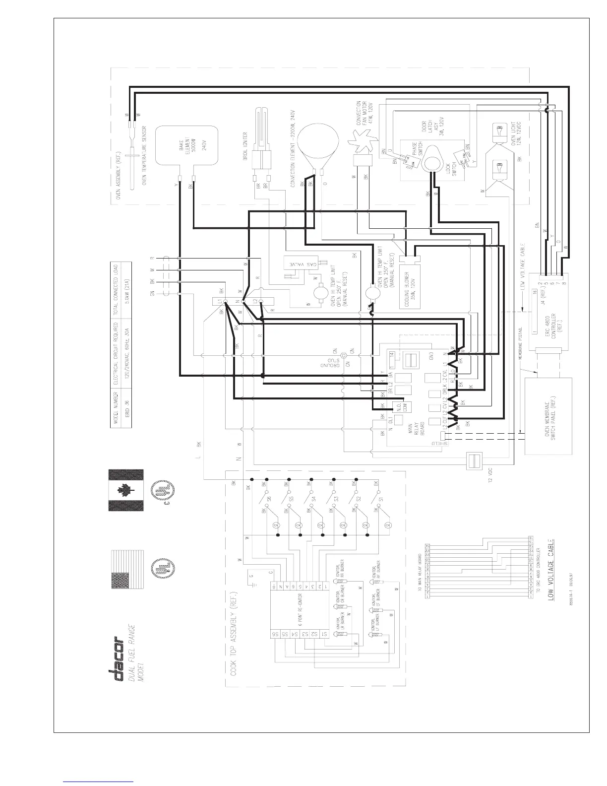
Dacor ERSD - ERD36 Self Clean Cycle Diagram

Dacor ERSD
159 pages
Print Icon
To Next Page IconTo Next Page
To Next Page IconTo Next Page
To Previous Page IconTo Previous Page
To Previous Page IconTo Previous Page
Loading...
Technical Manual - Page 68
ERD36 SELF CLEAN CYCLE

Table of Contents

Related product manuals