EasyManua.ls Logo

Dacor ERSD - 18 Oven Self Clean Cycle

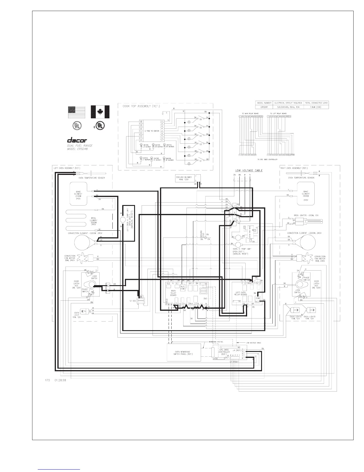
Dacor ERSD
159 pages
Print Icon
To Next Page IconTo Next Page
To Next Page IconTo Next Page
To Previous Page IconTo Previous Page
To Previous Page IconTo Previous Page
Loading...
Technical Manual - Page 74
Note:
Cooling fan turns on between
180 and 220 degrees
18” OVEN SELF CLEAN CYCLE

Table of Contents

Related product manuals