EasyManua.ls Logo

Dacor ERSD - Standard Bake Cycle

Dacor ERSD
159 pages
Print Icon
To Next Page IconTo Next Page
To Next Page IconTo Next Page
To Previous Page IconTo Previous Page
To Previous Page IconTo Previous Page
Loading...
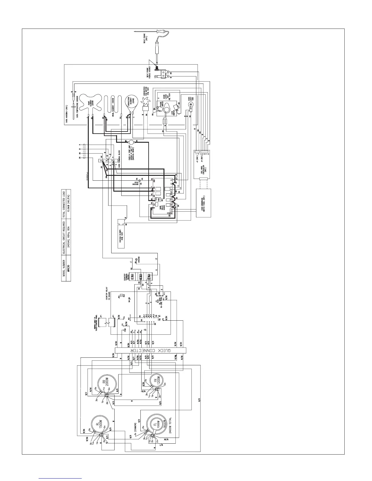
MRE30 Service Instructions Page 26
Bake
STANDARD BAKE CYCLE

Table of Contents

Related product manuals