EasyManua.ls Logo

Dacor ERSD - RSD - Preheat

Dacor ERSD
159 pages
Print Icon
To Next Page IconTo Next Page
To Next Page IconTo Next Page
To Previous Page IconTo Previous Page
To Previous Page IconTo Previous Page
Loading...
Technical Manual - Page 91
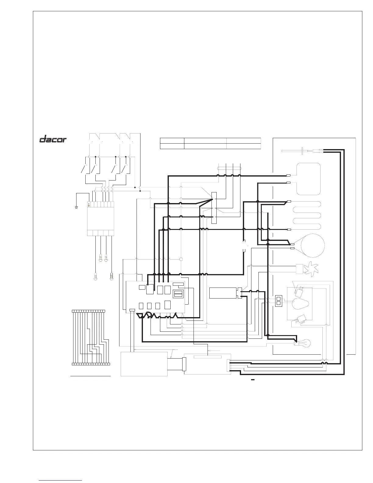
ERC 4800
CONTROLLER
(REF.)
OVEN MEMBRANE
SWITCH PANEL (REF.)
BK
COM
N.O.
BK
BU R
Y
BAL2
BR
L2
CV
L2 DRLK L2 CVL
L1
N
BK
OVEN ASSEMBLY (REF.)
BK
W
OVEN
LIGHT
40W
W
BK
CONVECTION ELEMENT -2200W, 240V
BK
O
BU
BK
BK
Y
BAKE
ELEMENT
2200W
BROIL ELEMENT -3500W, 240V
COOLING BLOWER
L1
L2
N
R
W
BK
OPEN 250∞ F.
OVEN HI TEMP LIMIT
BK
BK
OVEN TEMPERATURE SENSOR
W
W
W
O
R
W
W
BK
BK
BK
BK
W
BN
O
Y
BN
J4 (REF.)
2
5
6
7
8
BN
GROUND
STUD
GN
MAIN
RELAY
BOARD
(MANUAL RESET)
BK
BK
BN
W
Y
O
W
PHASE
SWITCH
LOCK
SWITCH
L2
W
BK
W
R
R
BK
BK
BK
BK
BK
BKGN W
R
GND
GN
GN
W
DOOR
LATCH
ASY
3W, 120V
41W, 120V
FAN MOTOR
CONVECTION
35W, 120V
CLF
SHIELD
NOL1
85061-1 03.22.95
S4
S3
S2
S1
N
A
4 3 2 1
S4
S3
S2
S1
4 POINT RE-IGNITOR
L.R
INDICATOR
LIGHTS
TERM.
BLOCK
R.R
R.F L.F.
W
BK
IGNITION
PLUGS
W
BK
GN
240V
130V
116
114
LOW VOLTAGE CABLE
16
15
14
13
12
11
10
9
8
7
6
5
4
3
2
11
2
3
4
5
6
7
8
9
10
11
12
14
13
TO MAIN RELAY BOARD
TO ERC 4800 CONTROLLER
LOW VOLTAGE CABLE
MEMBRANE PIGTAIL
120/240VAC, 60Hz, 30A
MODEL NUMBER ELECTRICAL CIRCUIT REQUIRED TOTAL CONNECTED LOAD
RSD30
5.8kW (23A)
DUAL FUEL RANGE
MODEL RSD30
RSD - PREHEAT

Table of Contents

Related product manuals