EasyManua.ls Logo

DSE DSE4610 - Dse4620 Typical Wiring Diagram (3 Phase 4 Wire)

DSE DSE4610
86 pages
Print Icon
To Next Page IconTo Next Page
To Next Page IconTo Next Page
To Previous Page IconTo Previous Page
To Previous Page IconTo Previous Page
Loading...
Installation – Typical Wiring Diagrams
32
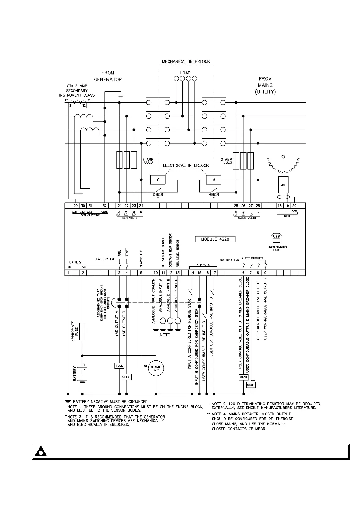
4.2.2 DSE4620 TYPICAL WIRING DIAGRAM (3 PHASE 4 WIRE)
NOTE: Terminals 29-32 are not fitted on the DSE46xx-01 variant.

Table of Contents

Related product manuals