EasyManua.ls Logo

DSE DSE7220 - 7210 Autostart Controller

Default Icon
160 pages
Print Icon
To Next Page IconTo Next Page
To Next Page IconTo Next Page
To Previous Page IconTo Previous Page
To Previous Page IconTo Previous Page
Loading...
DSE7200 / 7300 Series Operators Manual
41
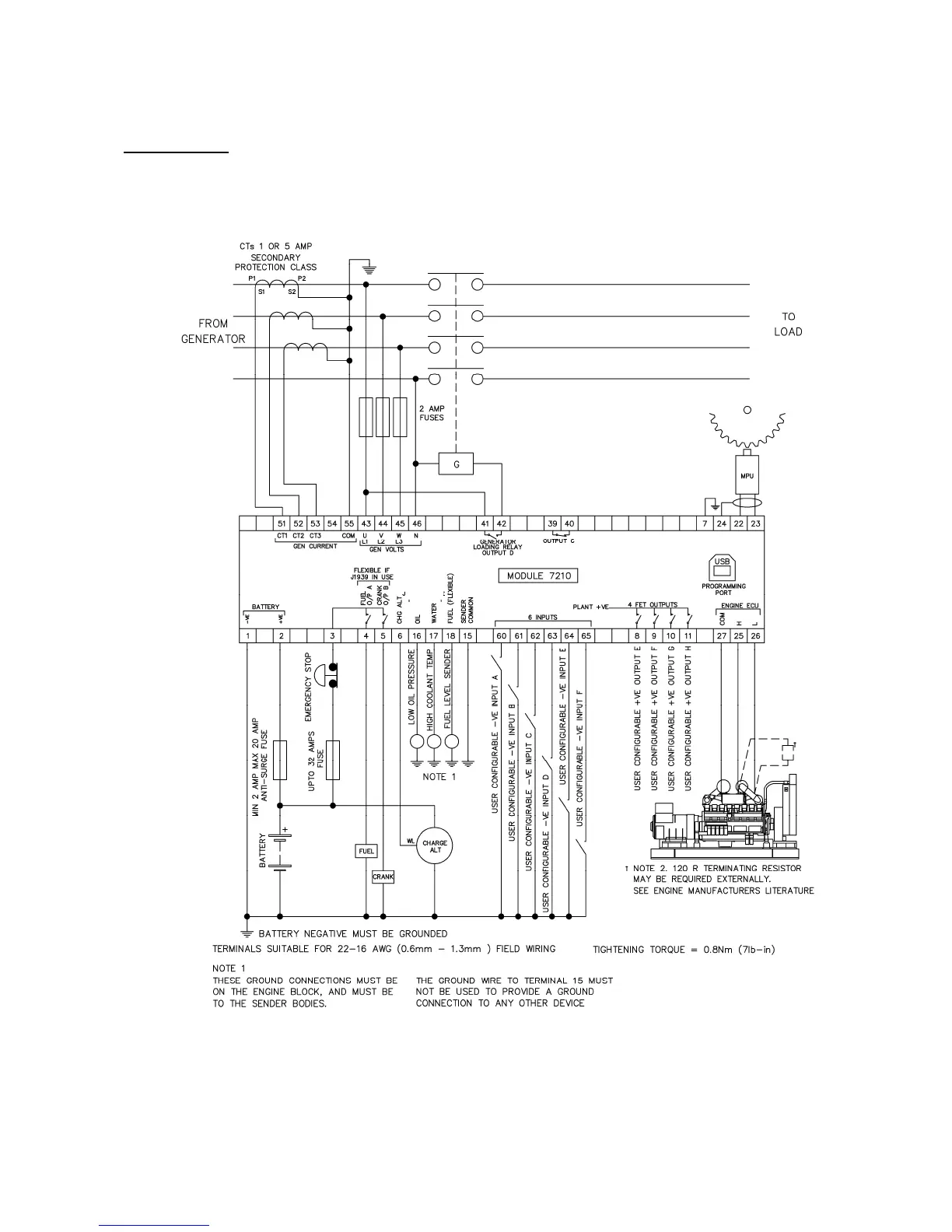
4.3.1 7210 AUTOSTART CONTROLLER
3 phase, 4 wire

Table of Contents

Related product manuals