EasyManua.ls Logo

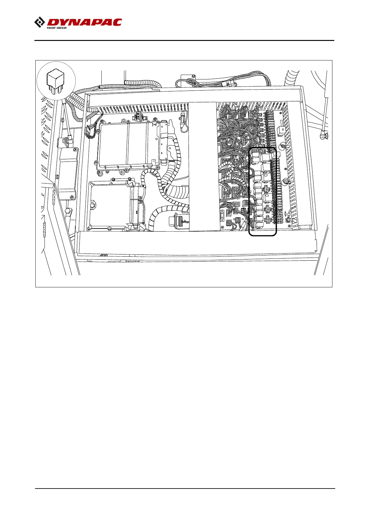
Dynapac SD2550C - Relays in terminal box (C)

Dynapac SD2550C
468 pages
Print Icon
To Next Page IconTo Next Page
To Next Page IconTo Next Page
To Previous Page IconTo Previous Page
To Previous Page IconTo Previous Page
Loading...
F 81 12
Relays in terminal box (C)
15
10
15
25
15
10
15
25
15
10
10
15
25
15
15
10
25
10

Table of Contents

Related product manuals