EasyManua.ls Logo

Eaton MMX12 Series - Page 124

Eaton MMX12 Series
199 pages
To Next Page IconTo Next Page
To Next Page IconTo Next Page
To Previous Page IconTo Previous Page
To Previous Page IconTo Previous Page
Loading...
Parameters
04/10 MN04020001Z-EN
120
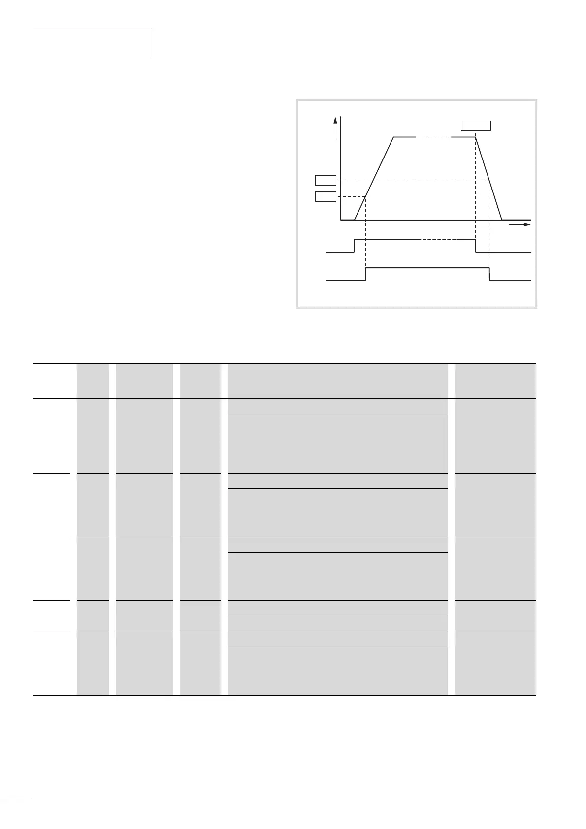
Mechanical brake (actuation)
The actuation of an external mechanical brake can be
implemented via one of the digital outputs (P5, see page 84), if the
value 26 (= External brake actuated) is assigned:
Transistor output DO: control signal terminal 20 (DO-), supply
voltage control signal terminal 13 (DO+), maximum 48 V DC/
50 mA, Parameter 5.3.
Relay RO1: N/O contact control signal terminal 22 (R13) and 23
(R14), maximum 250 V AC/2 A or 250 V DC/0.4 A,
Parameter P5.1.
Relay RO2: changeover contact, control signal terminal 25
(R21), 24 (R22) and 26 (R24), maximum 250 V AC/2 A or
250 V DC/0.4 A, Parameter P5.2.
a Brake, released
b Brake activates and brakes the drive mechanically.
P12.9
P12.8
f
[Hz]
R01, R02, DO
(P5... = 26)
RUN
(FWD/REV)
t
STOP
P6.8 = 1
ab
PNU ID Access right
RUN
Value Description Factory setting
(P1.3)
P12.7 1448 - Open external brake, deceleration time 0.2
Setting range: 0.00 - 320.00 s
Condition: RUN (Start enable)
If the frequency set here is exceeded, the value 26 switches the
assigned digital output (P5…) and the brake is actuated
(ventilated).
P12.8 1449 - Open external brake, frequency limit value 1.50
Setting range: 0.00 - P6.4 Hz
Condition: RUN (Start enable)
After the time set here has elapsed, the value 26 is switched to the
assigned digital output (P5…) (brake actuated).
P12.9 1450 - Close external brake, frequency limit value 1.00
Setting range: 0.00 - P6.4 Hz
If the frequency goes below the value set here, the value 26
deactivates the assigned digital output (P5…). The brake closes
again.
P12.10 1451 - Close external brake, frequency limit value on reversing (REV) 1.50
Setting range: 0.00 - P6.4 Hz
P12.11 1452 - Open external brake, current limit value 0.00
Setting range: 0.00 - P7.2 A
Condition: RUN (Start enable)
On reaching the current value set here, the value 26 is switched to
the assigned digital output (P5…) (brake actuated).

Table of Contents

Other manuals for Eaton MMX12 Series

Related product manuals