EasyManua.ls Logo

EBARA A07V - Page 29

EBARA A07V
69 pages
Print Icon
To Next Page IconTo Next Page
To Next Page IconTo Next Page
To Previous Page IconTo Previous Page
To Previous Page IconTo Previous Page
Loading...
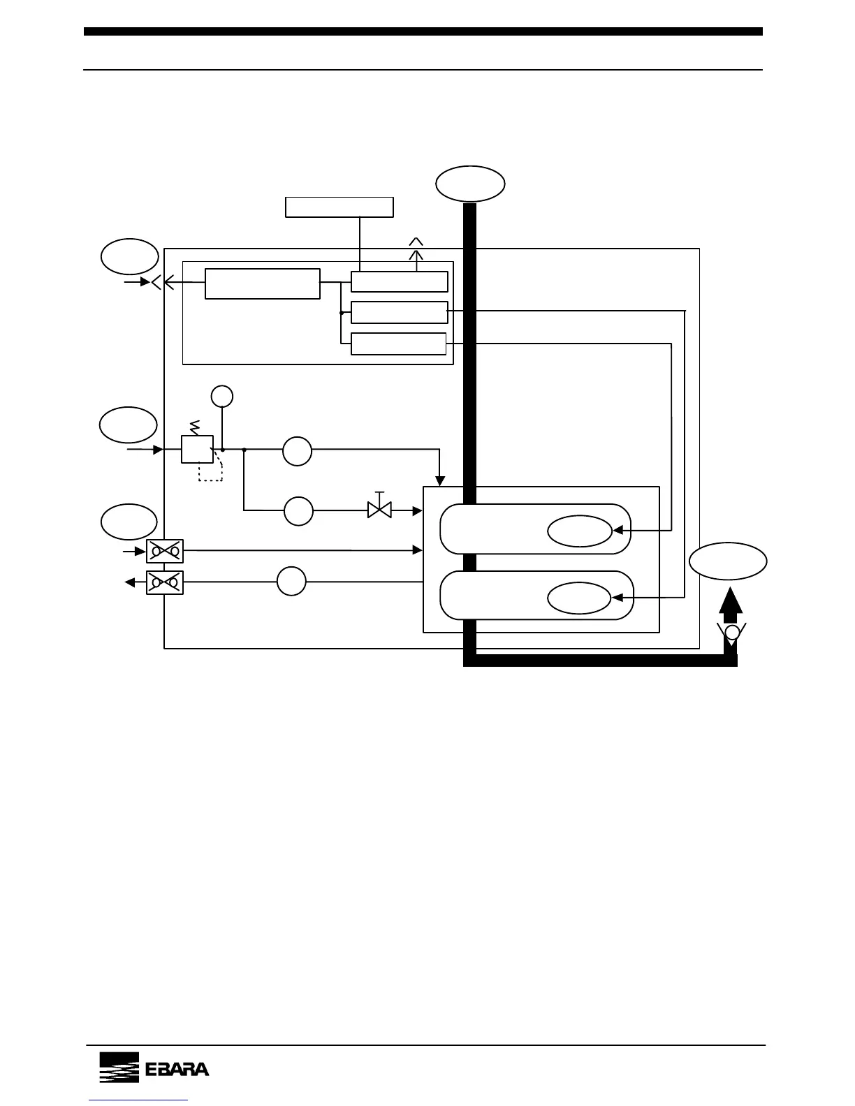
(15)
Check
Valve
Gas Inlet
Power
Motor Starter 1
Circuit Breaker
(ELB)
Gas Outlet
Seal N2 Gas Flow Sensor
FT1
Dilluting N2 Gas Flow Sensor
Selector Valve
Pressure Gauge
P
Regulator
Cooling Water Flow Sensor
FT3
Water
FT2
N2 Gas
Motor 1
Main Pump
(MP)
Booster Pump
(BP)
Connector
LCD Controller
Motor Starter 2
Motor 2
Control Circuit
[NOTE] A25S, A10S and A07V do not have a booster pump.
Figure 3.4 System Flow
EBARA Corporation

Related product manuals