EasyManua.ls Logo

Element4 SKY Series - Dimensional Drawings Overview

Default Icon
39 pages
Print Icon
To Next Page IconTo Next Page
To Next Page IconTo Next Page
To Previous Page IconTo Previous Page
To Previous Page IconTo Previous Page
Loading...
32
Appendix H
INSTALLATION MANUAL |
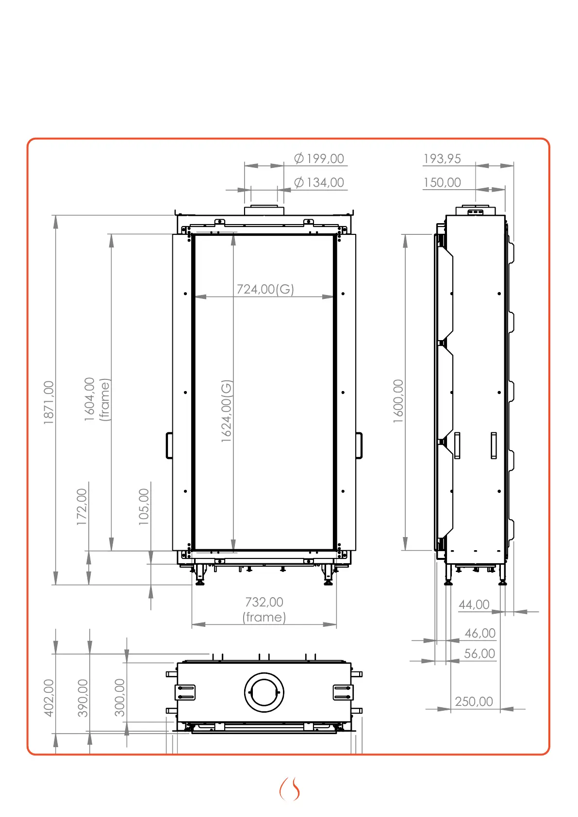
H DIMENSIONAL DRAWINGS
On this page you will nd trhr dimensional drawings of the Fireplace with
some of the important dimensions that you have to take into account
when installing and installing your replace.
724,00(G)
1624,00(G)
199,00
134,00
1871,00
1604,00
(frame)
732,00
(frame)
172,00
105,00
193,95
150,00
250,00
44,00
46,00
56,00
1600,00
992,00
928,00
880,00
300,00
402,00
390,00
Figure H.A | Technical drawing of Sky L F

Table of Contents

Related product manuals