EasyManua.ls Logo

Emerson SP3403 - Page 33

Emerson SP3403
220 pages
Print Icon
To Next Page IconTo Next Page
To Next Page IconTo Next Page
To Previous Page IconTo Previous Page
To Previous Page IconTo Previous Page
Loading...
Safety
Information
Introduction
Product
information
System
design
Mechanical
installation
Electrical
installation
Getting
started
Optimisation Parameters
Technical
data
Component
sizing
Diagnostics
Unidrive SP Regen Installation Guide 33
Issue Number: 2 www.controltechniques.com
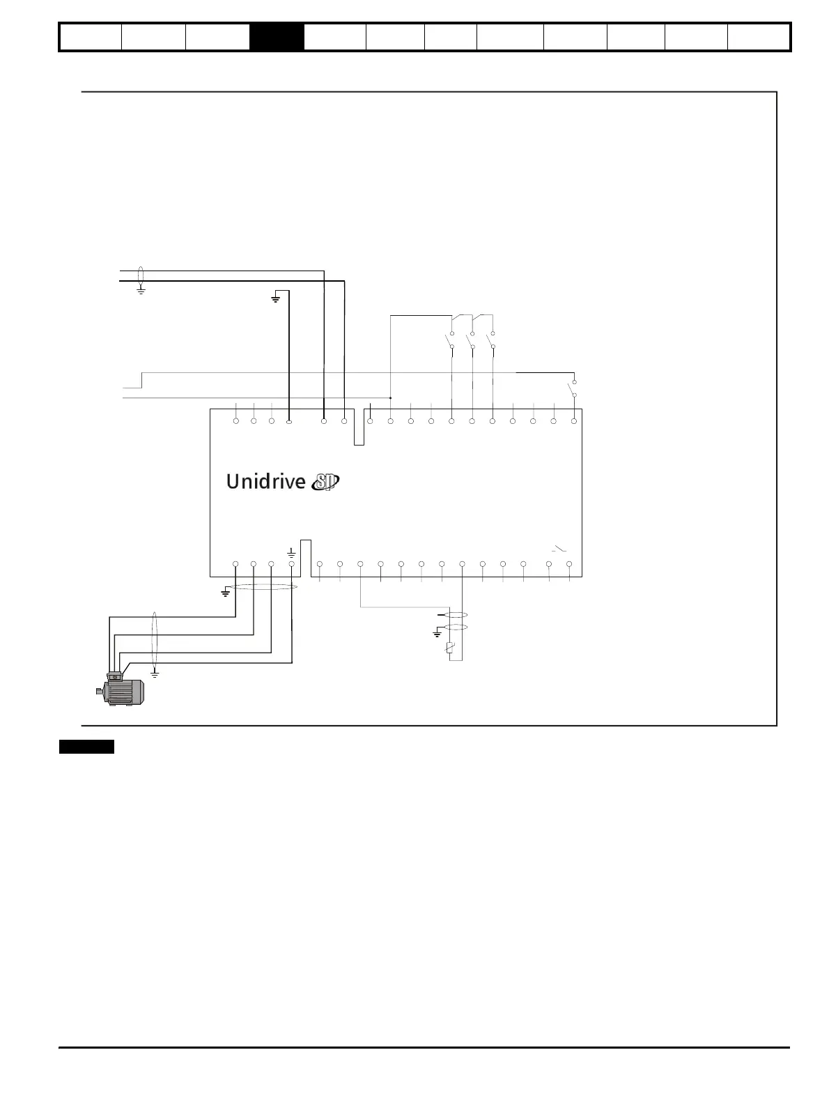
VDR4, VDR5 and VDR6 when operating with a 690Vac supply should
consist of two varistors each in series as detailed in Table 3-24 on
page 28.
UVW
L1 L2 L3 PE
-DC +DC
-DC
+DC
21
1
2 3 4 5 6 7 8 9 10 11 41 42
22 23 24 25 26 27 28 29 30 31
T.30
T.24
S5
Mt.1
AC Supply
NOT USED
Motor
Connections
Motoring
drive DC
Connections
U
V
W
PE
S2
S3 S4
Drive enable
0common
Run forward
Run reverse
Motor thermistor
Motoring drive
Drive reset
+24V output
0V common
V
Drive healthy
NOTE

Table of Contents

Related product manuals