EasyManua.ls Logo

Emerson SP3403 - Single Regen, Single; Multiple Motoring System; Power Connections: Single Regen, Single; Multiple Motoring System

Emerson SP3403
220 pages
Print Icon
To Next Page IconTo Next Page
To Next Page IconTo Next Page
To Previous Page IconTo Previous Page
To Previous Page IconTo Previous Page
Loading...
Safety
Information
Introduction
Product
information
System
design
Mechanical
installation
Electrical
installation
Getting
started
Optimisation Parameters
Technical
data
Component
sizing
Diagnostics
32 Unidrive SP Regen Installation Guide
www.controltechniques.com Issue Number: 2
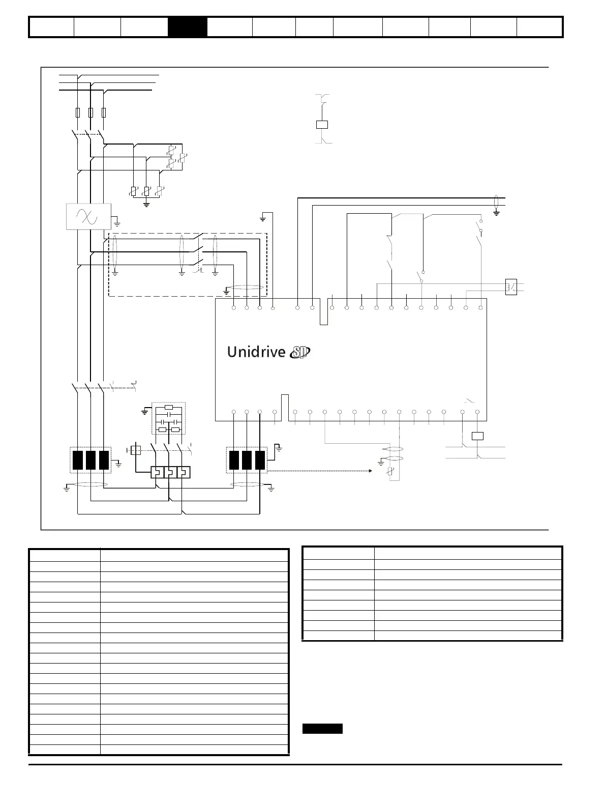
4.2.1 Single Regen, single / multiple motoring system
Figure 4-1 Power connections: Single Regen, single / multiple motoring system
Figure 4-1 shows both the power and control connections for the standard
regen solution this being a single regen and single motoring drive system.
For this solution the Vac supply is temporarily connected to the Regen
drive’s L1, L2, L3 inputs for initial power-up only, removing the need for
an external charging circuit. The main AC supply to L1, L2, L3 on the
Regen drive (K3) is interlocked with the Regen drive’s enable preventing
operation when the charging circuit is still connected.
The regen inductor duty is very arduous and therefore selection is critical
as a result only Regen inductors specified in this guide should be used.
UVW
-DC +DC
L1
L2
L3
-DC
+DC
21
1
2 3 4 5 6 7 8 9 10 11 41 42
22 23 24 25 26 27 28 29 30 31
T.30
T.24
L1
L2
RFI
K1
F1 F2 F3
VDR1
VDR2
VDR3
VDR4
VDR6
Tc.1
AC Supply
Power-up
Connections
AC Supply
Connections
Motoring
drive DC
Connections
+24 output
Enable motor drive
Contactor closed
0common
Drive enable
K2
Rly.1
(optional)
L1 L2 L3 PE
Aux.3
C1
OPD1
Aux.1
Regen drive
S1
A
ux.1
K2
ux.2a
Aux.2a
Regen inductor
thermistor
0V common
V
V
Drive healthy
Reset input
A
ux.3
S6
Contactor
control
VDR5
Vsupply
K3
Charging branch circuit
Aux.2b
K3
Vsupply
Aux.2b
Note: Surge suppressors to be fiited to contactor coils.
Supply
ground
Table 4-1 Key to Figure 4-1
Key Description
L1, L2, L3 Three phase supply
F1, F2, F3 Main regen system supply fuses
VDR1, VDR2, VDR3 Varistor network line-to-line
VDR4, VDR5, VDR6 Varistor network line-to-ground
RFI Optional RFI Filter
C1 Switching frequency filter capacitor
L1 Switching frequency filter inductor
L2 Regen inductor
K1 Main supply switch or contactor
K2 Regen drive main contactor
K3 Charging contactor
OPD1 Overload protection device for C1
Aux.3 K3 NC auxiliary contact
Aux.2a K2 NO auxiliary contact
Aux.2b K2 NC auxiliary contact
Aux.1 OPD1 NO auxiliary contact
Rly.1
Optional isolation for enable between Regen and motoring drive
Mt.1 Motor thermistor
Tc.1 Regen inductor thermistor
Vsupply System control supply
+DC, -DC Motoring drive power connection to Regen drive
S1 Regen drive enable
S2 Motoring drive enable
S3 Motoring drive reset
S4 Motoring drive run forward
S5 Motoring drive run reverse
S6 Regen drive reset input (Pr 8.24 = Pr 10.33)
Table 4-1 Key to Figure 4-1
Key Description
NOTE

Table of Contents

Related product manuals