EasyManua.ls Logo

enphase HCS-40 - Page 79

enphase HCS-40
96 pages
Print Icon
To Next Page IconTo Next Page
To Next Page IconTo Next Page
To Previous Page IconTo Previous Page
To Previous Page IconTo Previous Page
Loading...
© 2024 Enphase Energy Inc. Todos los derechos reservados.
Enero de 2024
140-00277-03
79
HCS Manual de instalación y funcionamiento
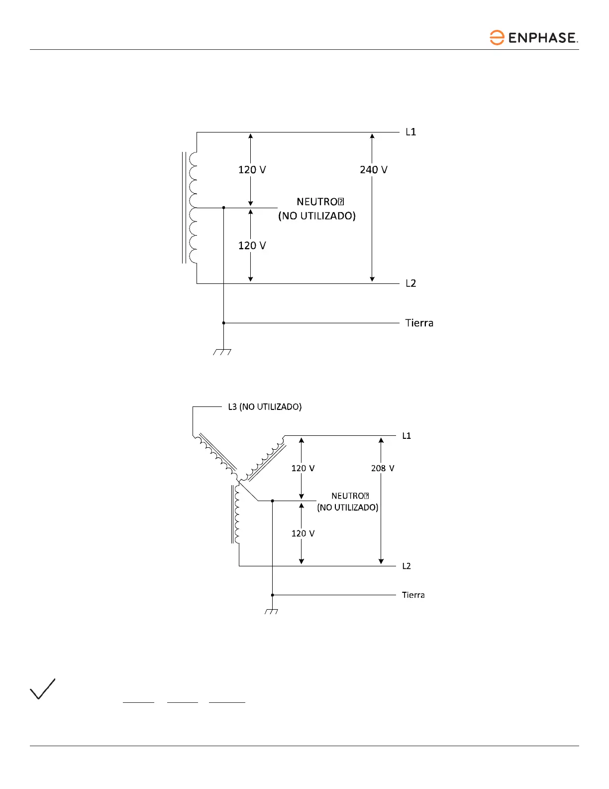
Figura 3 : Monofásico de 220 V/240 V
Los siguientes diagramas ilustran las tres conexiones secundarias de los transformadores de
servicio más comunes en Norteamérica.
Figura 4 : Trifásico de 208 V, conexión en estrella
NOTA : Con un secundario en estrella, se puede utilizar cualquiera de las dos patas para suministrar 208 V al HCS.
Por ejemplo, L1 y L2, o L1 y L3, o L2 y L3. Deje abierto el tramo no utilizado. No lo conecte a una barra de Neutro ni
a Tierra. Asegúrese de que el punto central esté conectado a tierra en algún punto del sistema.

Table of Contents

Other manuals for enphase HCS-40