EasyManua.ls Logo

Extra EA 500 - Page 260

Default Icon
400 pages
Print Icon
To Next Page IconTo Next Page
To Next Page IconTo Next Page
To Previous Page IconTo Previous Page
To Previous Page IconTo Previous Page
Loading...
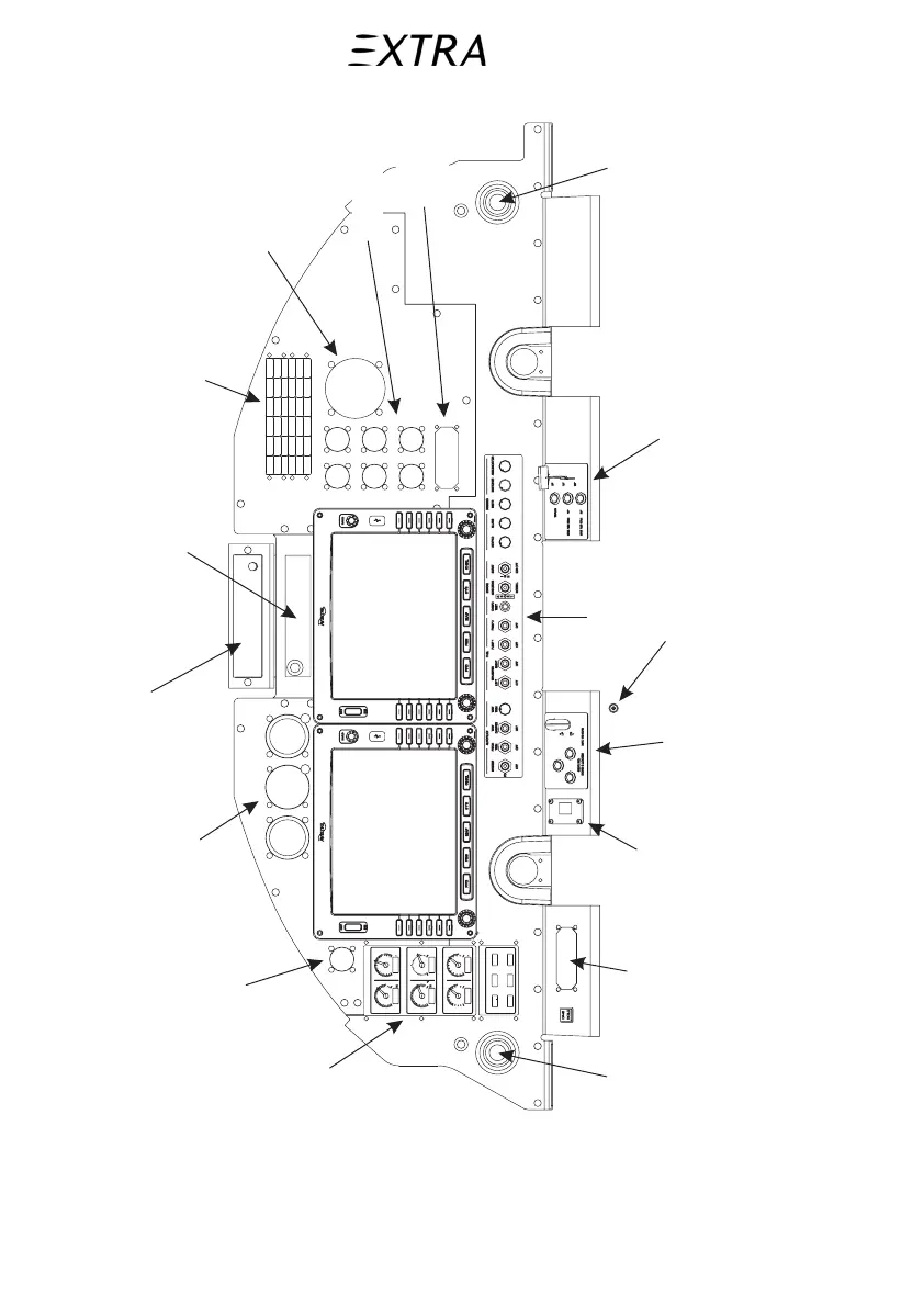
Section 7 Pilot’s Operating Handbook
Description of Airplane and Systems EXTRA 500
DME
indicator
AMPS
FUEL
Engine
Panel vent
instruments
C
AI
VDC
T
°
C
GEN
TEMP
°
S
P
PRESS
BAT
I
Prop
ammeter
LH IFD
instruments
Back-up
RH IFD
Autopilot
Audio panel
Panel vent
LO VOLTAGE
ALTERN ON
LOW PITCH
WINDSHIELD
OVERTEMP
HEAT FAIL
Annunciator panel
FUEL TRANS
FUEL FILTER
FUEL LOW
GENERATOR
GEAR
BYPASS
LEFT
LEFT
WARN
FLAPS
FAIL
PNEUMATIC
FUEL TRANS
FUEL LOW
STALL WARN
PRESSURE
LOW
RIGHT
RIGHT
CABIN
STANDBY
BLEED
DOOR
AFT
STALL
HEAT
coordinator
Turn
WINDSHIELD
PITOT HEAT
DETECTION
STATIC HEAT
FUEL
EXTERNAL
POWER
IGNITION
ACTIVE
PRESS
DEICE
BOOTS
HEAT
INTAKE
HEAT ON
LEFT
LEFT
PRESS
OIL
CHIP
PITOT HEAT
STATIC HEAT
LANDING
LIGHT
LIGHT
RECOGN
RIGHT
RIGHT
HYDRAULIC
PUMP
switch/indication
ELT
switch
Gear
Flap
switch/indication
Switches
Mike jack
4
O
N
1
1
P
X10
9
6
0
3
2
2
0
5
ISP
8
1
5
4
3
2
1
7
6
0
1
X10
01
9
1
PRM
0
5
T
2
0
0
5
1
1
0
57
5
2
QR
0
5
0
2
TO
10
8
6
12
C
X10
2
02
52
N
0
51
10
X10
PRM
T
10
8
6
4
C
0
X10
OT
Fuel flow
indicator
gauges
Fuel
Figure 7-3
Main Panel
7-10 26. January 2011

Table of Contents

Related product manuals