EasyManua.ls Logo

Extra EA 500 - Page 294

Default Icon
400 pages
Print Icon
To Next Page IconTo Next Page
To Next Page IconTo Next Page
To Previous Page IconTo Previous Page
To Previous Page IconTo Previous Page
Loading...
Section 7 Pilot’s Operating Handbook
Description of Airplane and Systems EXTRA 500
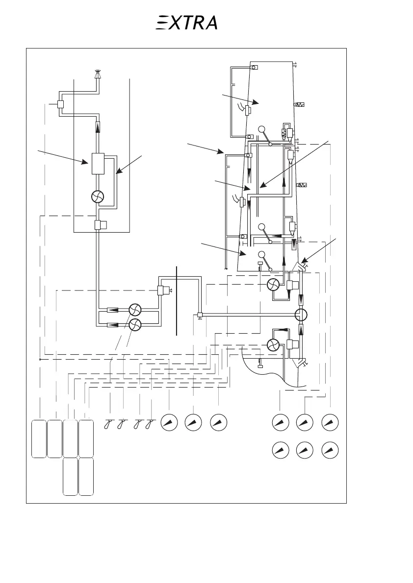
Fuel pump 2
Fuel pump 1
Fuel transfer right
Fuel transfer left
Fuel pressure
Fuel temperature
Fuel flow
Collector
Fuel quantity
Main
Auxiliary
Left
Right
Fuel control unit
Engine
Engine internal bypass
Collector compartment
Main compartment
Auxiliary compartment
Firewall
Vent line to left tank
Overflow line
Wing tank sump with strainer
Only right tank shown, left tank symmetric
FUEL FILTER
BYPASS
FUEL TRANS
LEFT
FUEL TRANS
RIGHT
FUEL LOW
LEFT
FUEL LOW
RIGHT
FUEL
PRESS
Figure 7-14
Fuel System Schematic (Sheet 1 of 2)
7-44 26. January 2011

Table of Contents

Related product manuals