EasyManua.ls Logo

Fassi F1000A - Hydraulic Schematics

Default Icon
128 pages
Print Icon
To Next Page IconTo Next Page
To Next Page IconTo Next Page
To Previous Page IconTo Previous Page
To Previous Page IconTo Previous Page
Loading...
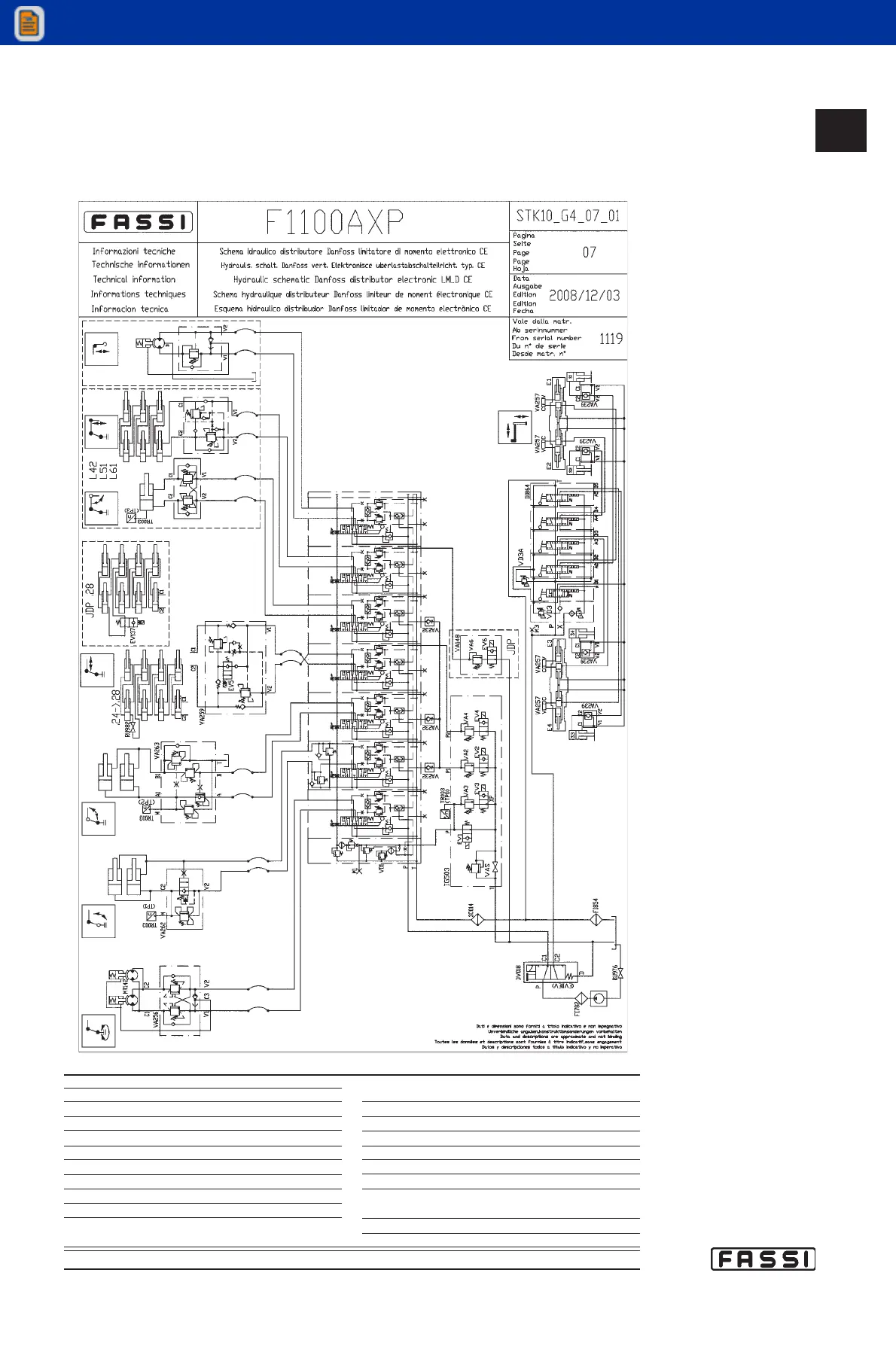
4 HYDRAULIC SCHEMATICS
(version with lifting moment limiting device)
Hydraulic schematic for crane - Danfoss distributor - “electronic” lifting moment limiting
device - CE
4
HYDRAULIC SCHEMATICS
GR5_F1000A/F1100AXP -
EVOLUTION
CODE DESCRIPTION
DI864 26V DISTRIBUTOR
DV018 DEVIATOR
EV137
ELECTROVALVE
FI782 OIL FILTER (HIGH PRESSURE)
FI854 OIL FILTER (RETURN)
IG503 INTEGRATED ASSEMBLY OF LIMITING DEVICE
M1/M2/M3 GAUGE QUICK CONNECTION
MT 142 MOTOREDUCER COMPLETE
RU976 FAUCET
RU982 FAUCET
SC014
OIL COOLER (HEAT EXCHANGER)
WITH BY-PASS
26V
SC015
OIL COOLER (HEAT EXCHANGER)
WITH BY-PASS
26V
TR003 PRESSURE TRANSDUCER
VA148
ELECTRIC MAIN VALVE WITH ELECTRIC ACTIVATION
VA232 UNIDIRECTIONAL VALVE
VA239 SIMPLE EFFECT BLOCK VALVE
VA256
OIL FLOW REGULATOR VALVE FOR ROTATION CYLINDER
VA257
SEQUENCE VALVE
20 BAR
VA259
REGENERATIVE VALVE
WITH
ELECTRIC
DEACTIVATION
VA262 SIMPLE EFFECT BLOCK VALVE
VA263 DOUBLE EFFECT BLOCK VALVE
View thousands of Crane Specifications on FreeCraneSpecs.com
View thousands of Crane Specifications on FreeCraneSpecs.com

Related product manuals