EasyManua.ls Logo

FBD FBD563 - Upper Board Schematic - Fbd564

FBD FBD563
56 pages
Print Icon
To Next Page IconTo Next Page
To Next Page IconTo Next Page
To Previous Page IconTo Previous Page
To Previous Page IconTo Previous Page
Loading...
52
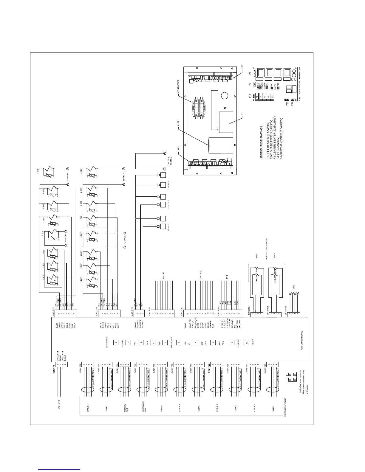
14.11 UPPER BOARD SCHEMATIC - FBD 564
564 SCHEMATIC, UPPER BOARD

Table of Contents

Related product manuals