EasyManua.ls Logo

Fermax MDS Series - Mds 3 A

Fermax MDS Series
152 pages
Print Icon
To Next Page IconTo Next Page
To Next Page IconTo Next Page
To Previous Page IconTo Previous Page
To Previous Page IconTo Previous Page
Loading...
Pag. 54
Technical Book
MDS
MDS
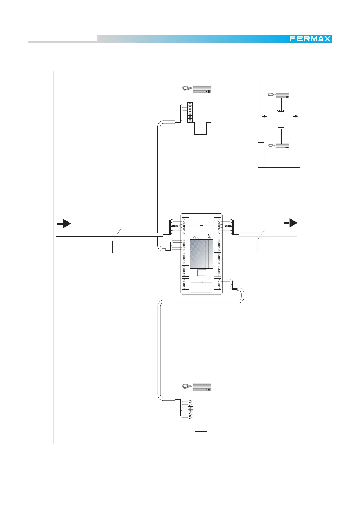
NR-2086
T1
4312 65
312
NR-2086
T8
645
Ref.5918
V
26
D1D2
+
-+
D1D2
2 6
BUS
PGM
-
BUS
-
341 2 3 6 21 64 1 423 6 6321 4
Ref.5918
DECODER 8
Ref.2425
T5 T7T6
3 646 213 426 3 6 14213421
T3T2 T4
REF. 2425
TELEPHONES
1
5
23
67
4
8
MDS 3A
REF.2425
FIRST FLOOR
TO THE NEXT FLOOR
FROM THE CENTRAL UNIT
MDS 3A
MDS 3A

Table of Contents

Other manuals for Fermax MDS Series

Related product manuals