EasyManua.ls Logo

Ferroli midas pc10 - Page 102

Ferroli midas pc10
Print Icon
To Next Page IconTo Next Page
To Next Page IconTo Next Page
To Previous Page IconTo Previous Page
To Previous Page IconTo Previous Page
Loading...
24
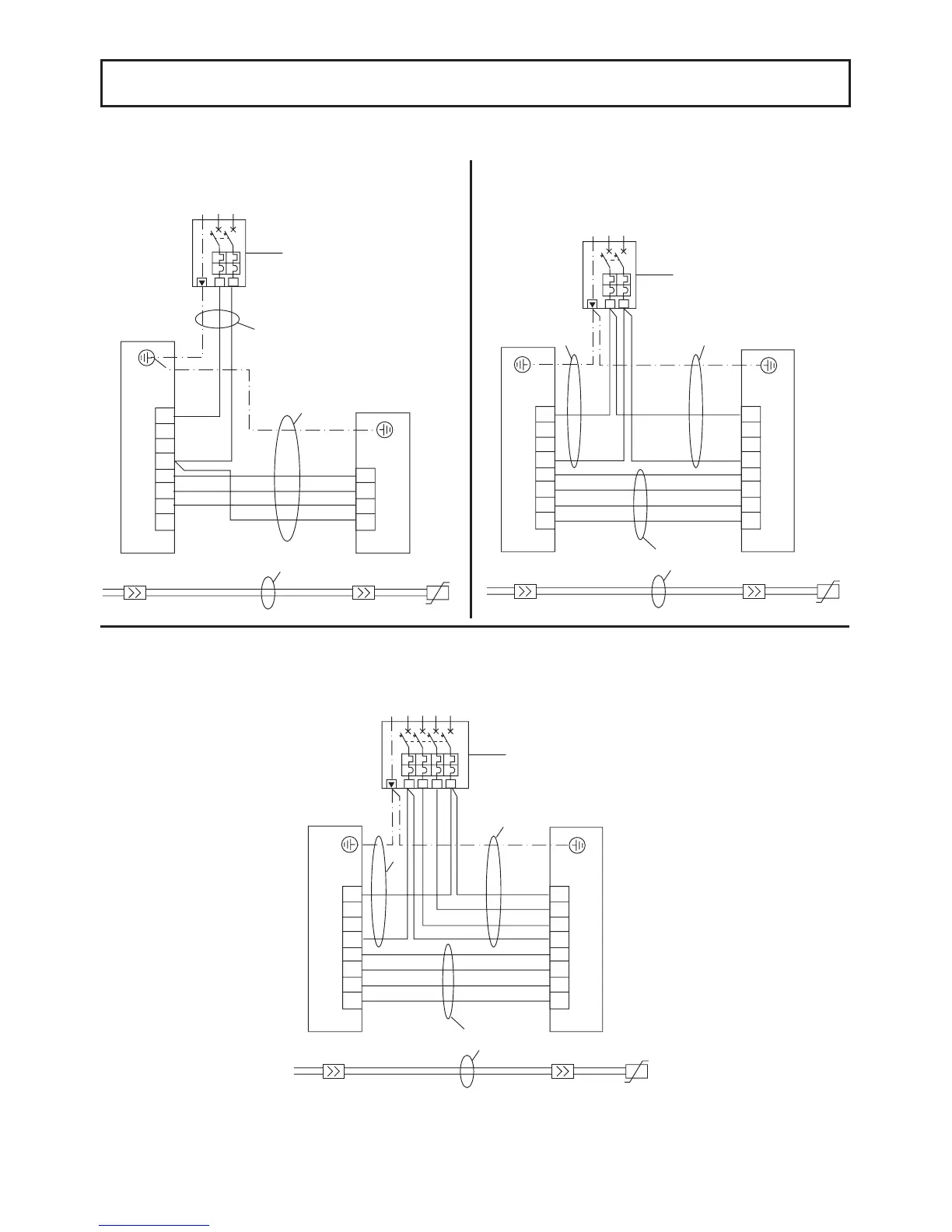
INSTALACIÓN
LN
ALIM. 230V-1-50Hz
IG
A
B
C
N
1
2
3
4
1
2
3
N
C
B
a corredo
CA
B
LN
ALIM. 230V-1-50Hz
IG
A
B
C
N
1
2
3
4
A
B
C
N
1
2
3
4
a corredo
NL1L2L3
ALIM. 400V-3-50Hz
IG
A
C
B
A
B
C
N
1
2
3
4
A
B
C
N
1
2
3
4
a corredo
Mod. 12000 - 18000
Mod. 24000 - 30000 - 36000
Mod. 30000/3 - 36000/3 - 48000/3
UI
UE
UI
UE
UI
UE

Table of Contents