EasyManua.ls Logo

Ferroli midas pc10 - Height and Pipe Length Limits

Ferroli midas pc10
Print Icon
To Next Page IconTo Next Page
To Next Page IconTo Next Page
To Previous Page IconTo Previous Page
To Previous Page IconTo Previous Page
Loading...
17
MODEL
SPECIFICATIONS
UM 12000 18000 24000 30000 30000-3 36000 36000-3 48000-3
DIAMETER
LIQUID
1/4 1/4 3/8 3/8 3/8 1/2 1/2 1/2
GAS
1/2 1/2 5/8 5/8 5/8 3/4 3/4 3/4
MAXIMUM LENGTH
m 15 15 20 20 20 25 25 25
MAXIMUM
DIFF.IN
HEIGHT
Exterior unit low (H1)
m 7 9 11 11 11 12 12 12
Exterior unit high (H2)
m 5 7 9 9 9 10 10 10
Maximum pipe length with standard
charge
m 5 5 7 7 7 10 10 10
Type of coolant
R410A
Quantity of additional cooland per
meter
g/m 30 30 50 50 50 100 100 100
INSTALLATION
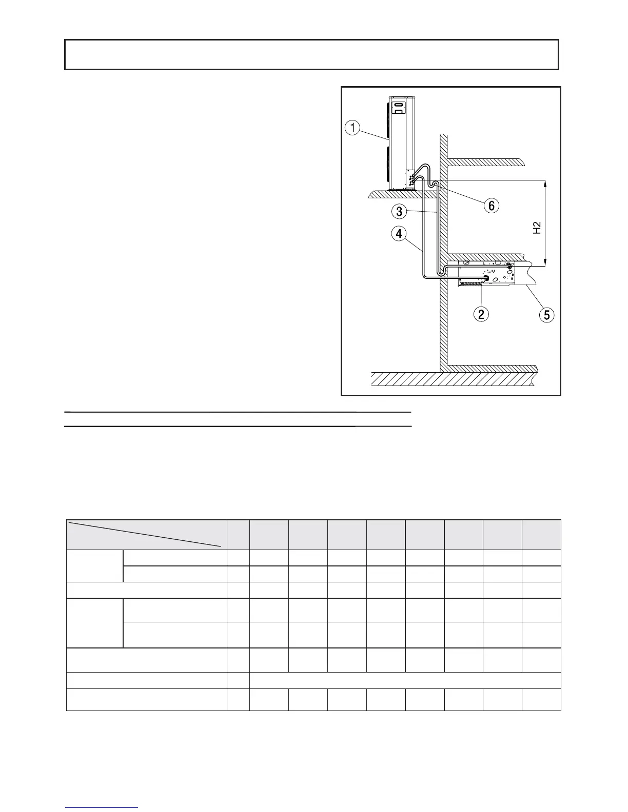
LIMITS TO THE LENGTH AND HEIGHT DIFFERENCE OF COOLANT PIPES
The length of the coolant pipes between the interior and exterior units must be as short as possible and is in any case
limited by compliance with the maximum height difference values between the units.
Diminution of the difference in height between the units (H1,H2) and the pipe lengths (L) will limit the load losses, con-
sequently increasing the overall efficiency of the machine.
Comply with the limits given in the following tables.
Contact our technical department for the required modifications if the units must operate beyond the speci-
fications given above.
Exterior unit high and interior unit low.
The maximum difference in height between the interior unit
and exterior unit must not exceed the value given in the
table. In this case, traps (6) must be installed for every
three meters of height difference. The purpose of these
traps is to allow oil to return to the compressor. The con-
nection pipes must be insulated.
Key:
1. Exterior unit
2. Interior unit
3. Pipe on gas side
4. Pipe on fluid side
5. Treated air duct
6. Trap

Table of Contents

Related product manuals