EasyManua.ls Logo

Ferroli midas pc10 - Overall Dimensions of the Interior Units

Ferroli midas pc10
Print Icon
To Next Page IconTo Next Page
To Next Page IconTo Next Page
To Previous Page IconTo Previous Page
To Previous Page IconTo Previous Page
Loading...
750
601
??
25
25
520
260
25
222
1400
752
25
?
?
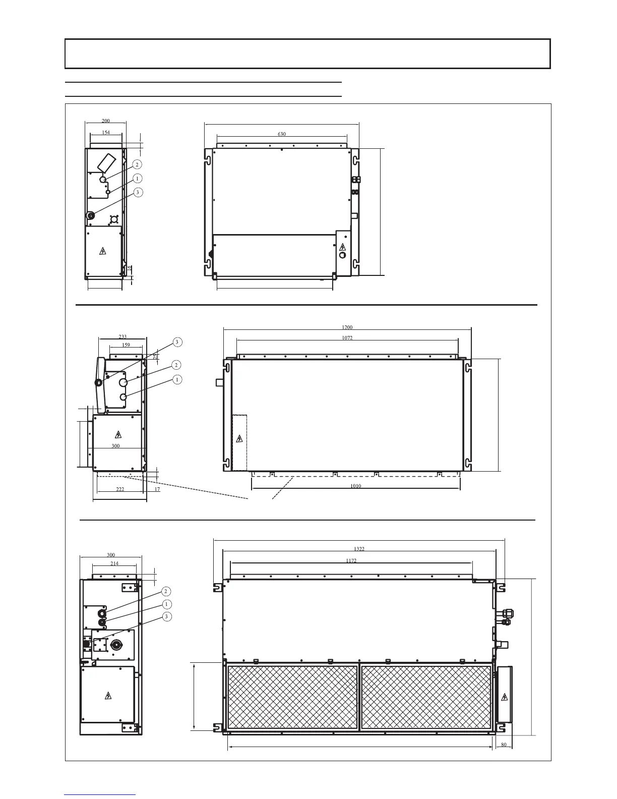
DIMENSIONS
OVERALL DIMENSIONS OF THE INTERIOR UNITS
7
1 = Fluid line connection
2 = Gas line connection
3 = Condensate drain bowl
Mod. 12000
Mod. 18000 - 24000 - 30000
optional rear suction
Mod. 36000 - 48000

Table of Contents

Related product manuals