EasyManua.ls Logo

Fire-Lite MS-9200(C) - Page 79

Fire-Lite MS-9200(C)
92 pages
Print Icon
To Next Page IconTo Next Page
To Next Page IconTo Next Page
To Previous Page IconTo Previous Page
To Previous Page IconTo Previous Page
Loading...
Document #51003 Rev.E 01/11/02 P/N 51003:E 79
NFPA Standard-Specific Requirements
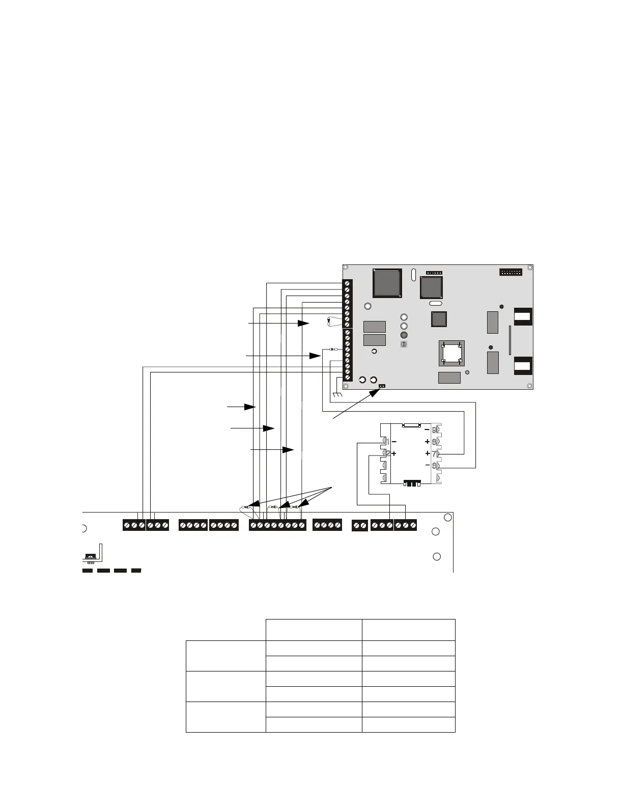
The following figure illustrates an example of Central Station/Remote Station Reporting using a 411UD. The relay
contacts from the MS-9200 may be used to trip any dialer UL listed for Central Station/Remote Station Reporting
Services.
TABLE E-2:
411-UD Connections to MS-9200
411-UD MS-9200
Alarm
TB2-2 TB3-5
TB2-1 TB3-3
Trouble
TB2-4 TB3-8
TB2-3 TB3-6
Supervisory
TB2-6 TB3-2
TB2-5 TB3-1
24V UNREG
24V NONRS 24V RST BELL 2 POWER
BELL 1 POWER
SUPV AL A RM TROUBLE PC/PRIN TER TERM COMM
+ - + - + -
B+ A+ A- B-
B+ A+ A- B-
NO C NO NC C NO NC C
A B B+ A+ B- A-
1 COMM 2
ACS SHIELD SLC SL C
OUT + IN + OUT - I N-
T
B
4
T
B
2
T
B
1
T
B
3
T
B
7
T
B
5
T
B
6
TB2
TB1
U8
U10
U11
J1
J2
J4
PH1
R41
PH2
Monitor
Module
FIGURE E-2:
Fire•Lite MS-9200 Connection to 411-UD
Note:The MMF-300 monitor module input,
which is being used to monitor the 411-UD
Relay #2 Output (programmed for DACT
Trouble), must be programmed as ‘DACT
Trouble” at Fire•Lite MS-9200.
Channel1
Channel 2
Channel 3
Channel 4
2.2K
EOL
Relay Output
(DACT Trouble)
47K EOL
24 VDC nonresettable power
MS-9200
Supervisory Relay
MS-9200
Alarm Relay
MS-9200
Trouble Relay
2.2K EOLS
P/N 27070
J4 Not Installed
411-UD
MMF-300 Monitor
Circuit Input
SLC Loop
+
_
Fire•Lite MS-9200
9200411u.cdr

Table of Contents

Related product manuals