EasyManua.ls Logo

Frick RWB II Plus - MICRO COMPONENT PLACEMENT DIAGRAM; RWB II PLUS TELECOMMUNICATIONS

Frick RWB II Plus
32 pages
Print Icon
To Next Page IconTo Next Page
To Next Page IconTo Next Page
To Previous Page IconTo Previous Page
To Previous Page IconTo Previous Page
Loading...
RWB II PLUS MICROPROCESSOR CONTROL
MAINTENANCE
S70-200 OM
Page 27
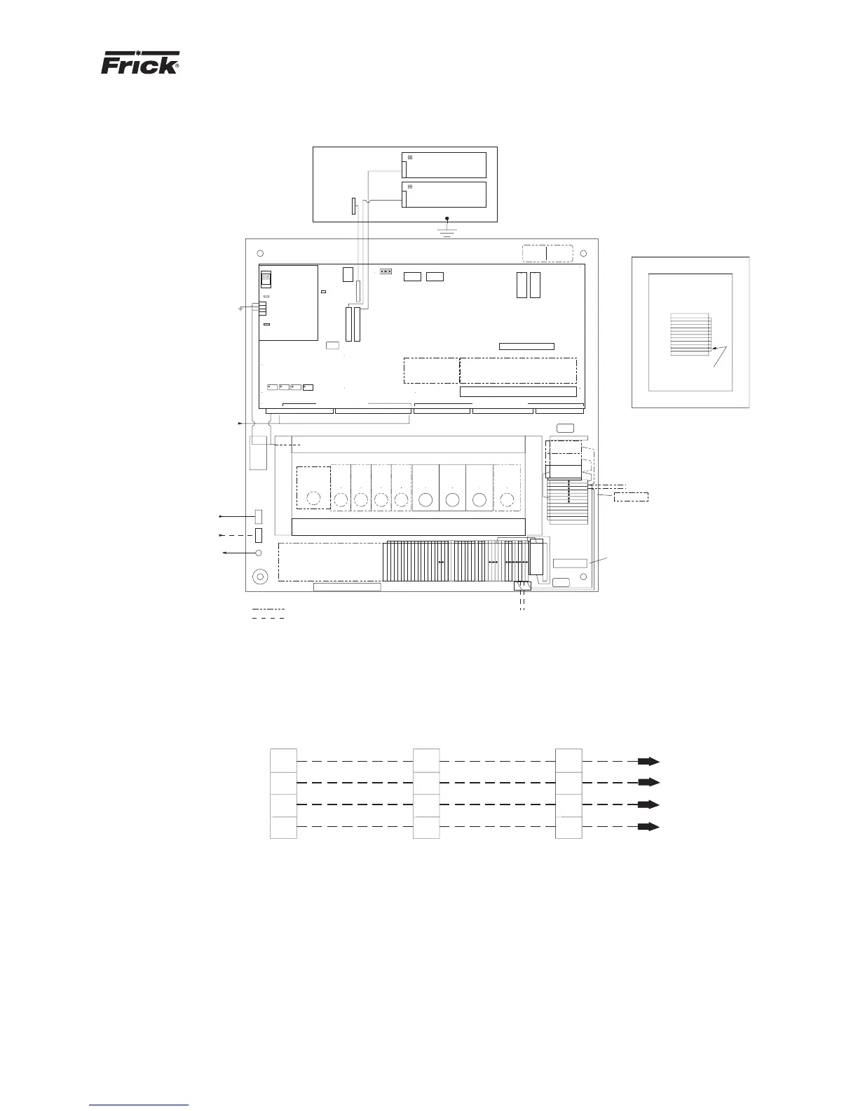
MICRO COMPONENT PLACEMENT DIAGRAM
ANALOG
WIRING
THIS STUD NOT REQ'D
IF GROUNDING WASHER &
STUD ON SIDE ARE USED
TO DOOR & STUD
ON FRONT PANEL
CUSTOMER'S
GROUND WIRE
ANALOG
DRAIN WIRES
1A
INDICATES DEVICES SUPPLIED ONLY WHEN OPTIONAL OR REQUIRED
COPPER CONDUCTORS ONLY
GROUNDING WASHER
.
STUD
PA NE L
GREEN
LUG
GND
LUG
GND
TOROID
1TR
41
42
37
36
34
SPARE
CRCR CR CR
2 FU
REPLACEMENT
10 AMPTYPE FNM
250 VOLTS
42 TERMINALS
CUSTOMER'S CONTROL
POWER CONNECTION
L2 L1
5
17
23
30
33
32
31
29
24
20
22
21
20
19
18
11
14
16
15
13
12
10
8
7
5
6
5
2CR3CR 1CR
2
4
3
2
2
2
1
1
2
2FU
115 VOLTS
12 TERMS
1
1CR1
2A
27
27A
SPARE
SPARE
26
25
25
1FU
1A
1A
2A
2A
CUST'S HTR CONNECTION
IF SEPARATE FROM CONTROL
AT STOCK LEVEL, PLACE
115 VOLT LABEL HERE.
PLACE 230 VOLT LABEL OVER
IT IF CONTROL & HEATERS
ARE 230 VOLTS.
1
2
230 VOLTS
PLACE 230 VOLT LABEL
HERE IF ONLY HEATERS
ARE 230 VOLT
1A
WIREWAY-AC WIRING ONLY
3
DIGITAL INPUT
ZERO
POT
ZERO
C.T.
TERM
SPAN
SPAN
S.S.
POTPOT
1
POT
23
S.V.
F2
ANALOG TERMS
1
RWB II PLUS
FRICK REV D
P11
ANALOG
EXPANSION
4
P12
P9
11
SUPPLY
POWER
115V
P13
GND
230
NEU
115
F1
1
P15
P10
+
BAT
BATTERY
2
PORT
OFF
ON
DIG I/O EXPANSION
34
FUSES FU1-FU16
DIGITAL OUTPUT
16
DIG I/OTERMS
17
MODULES MODULES
35 48
P6
PORT
1
3 U5 U4
C.T. & SBC POWER
SUPPLY WIRING
1A FU
1B FU
1A FU OR
1B FU OR
1 FU
REPLACEMENT
TYPE BAF
250 VOLTS
15 AMP
CSA ONLY
WARN ING
MORE THAN ONE
LIVE CIRCUIT
SEE DIAGRAM
AVERTISSEMENT
CET EQUIPMENT
RENFERME PLUSIEURS
CIRCUITS SOUS TENSION.
VOIR LE SCHEMA
FRONT PANEL (REAR VIEW)
12 COND
1
1
26 COND
26 COND
1
GREEN WIRE
DISPLAY
CONTRAST POT
DISPLAY
CONTRAST POT
4DW
(IF REQ'D)
SP FU'S
1A
FOR DRAIN WIRE
OF CHANNEL 4
DO NOT GROUND HERE
JUNCTION BOX FOR SPLIT SKID UNITS WITH
VERTICAL SEPARATORS-(2 REQUIRED)
5
24
26
2A
4+
4S
SPARE
27
2A
WIRING BY OTHERS
AC-422 Asychronous Adapter Card Pinout RWB II PLUS MICRO Ports 1 and 2 Pinout
1,3 Ground 3 Ground
9 - RX (Receive) 2 - CTS (Clear To Send)
8 + RX (Receive) 1 + CTS (Clear To Send)
5 - TX (Transmit) 5 - RX (Receive)
4 + TX (Transmit) 4 + RX (Receive)
7 - RTS (Request To Send)
RS-422 Communication Ports 1 and 2 6 + RTS (Request To Send)
9 - TX (Transmit)
Word = 8 bit 8 + TX (Transmit)
Parity = None or Even NOTE: Jumper Pin 1 to 6 and
Stop = 1 Bit Jumper Pin 2 to 7
If RTS is ā€œ+ā€, CTS are not used.
RWB II PLUS TELECOMMUNICATIONS
8
88
9
99
4
44
5
55
COMPUTER TO RWB II MICROPROCESSOR WIRING DIAGRAM
COMPUTER
COMMUNICATIONS
PORT: AC-422
COMPRESSOR #1
PORT #1
COMPRESSOR #2
PORT #1

Related product manuals