EasyManua.ls Logo

Fronius Primo GEN24 10.0 Plus - Fronius Primo GEN24 and BYD Battery-Box Premium HV

Fronius Primo GEN24 10.0 Plus
208 pages
To Next Page IconTo Next Page
To Next Page IconTo Next Page
To Previous Page IconTo Previous Page
To Previous Page IconTo Previous Page
Loading...
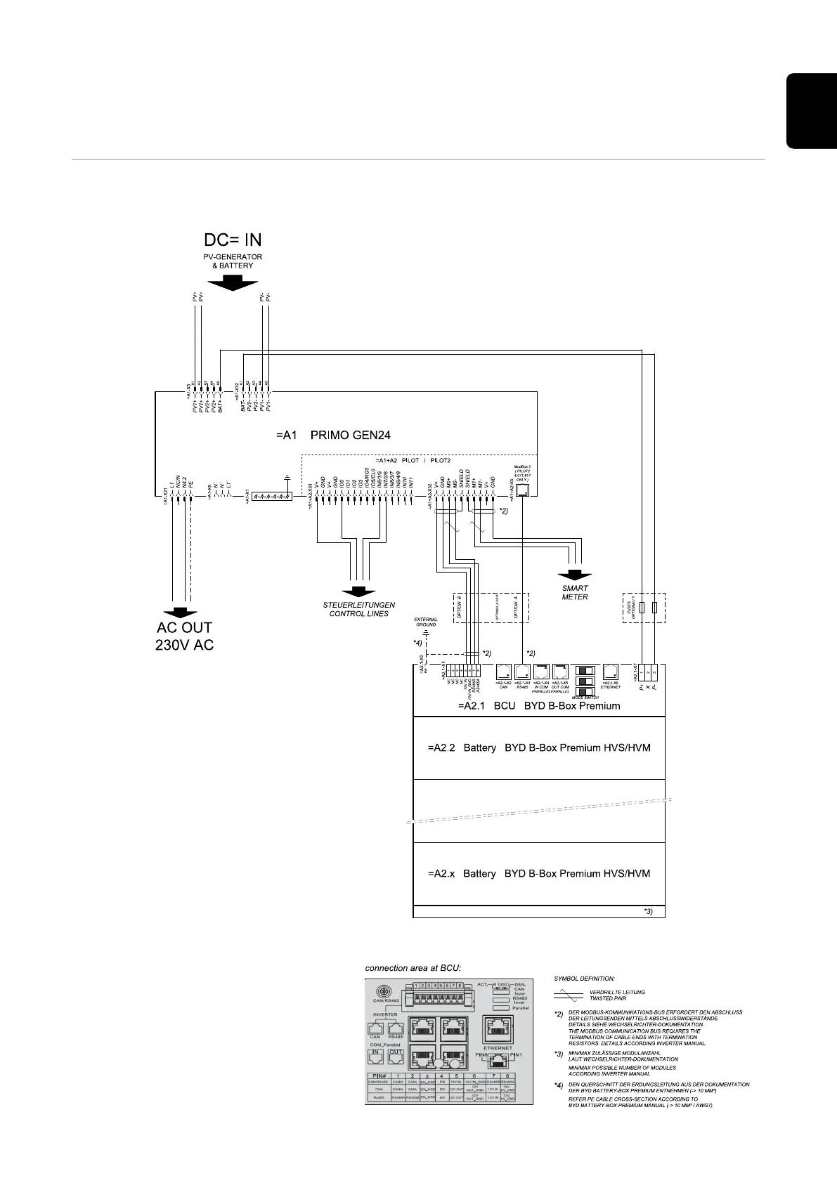
Fronius Primo GEN24 and BYD Battery-Box
Premium HV
Circuit Diagram
183
EN

Table of Contents

Related product manuals