EasyManua.ls Logo

Fronius Primo GEN24 10.0 Plus - Circuit Diagram - PV Point (OP) Australia; Circuit Diagram

Fronius Primo GEN24 10.0 Plus
208 pages
To Next Page IconTo Next Page
To Next Page IconTo Next Page
To Previous Page IconTo Previous Page
To Previous Page IconTo Previous Page
Loading...
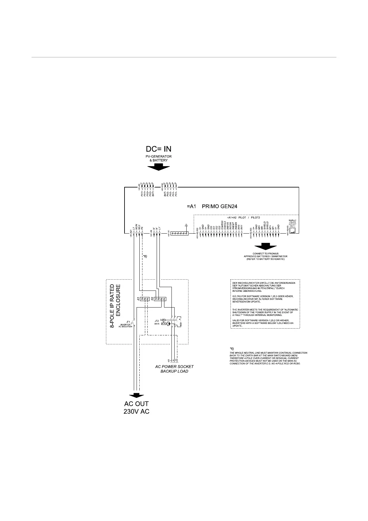
Circuit Diagram - PV Point (OP) Australia
Circuit Diagram
188

Table of Contents

Related product manuals