EasyManua.ls Logo

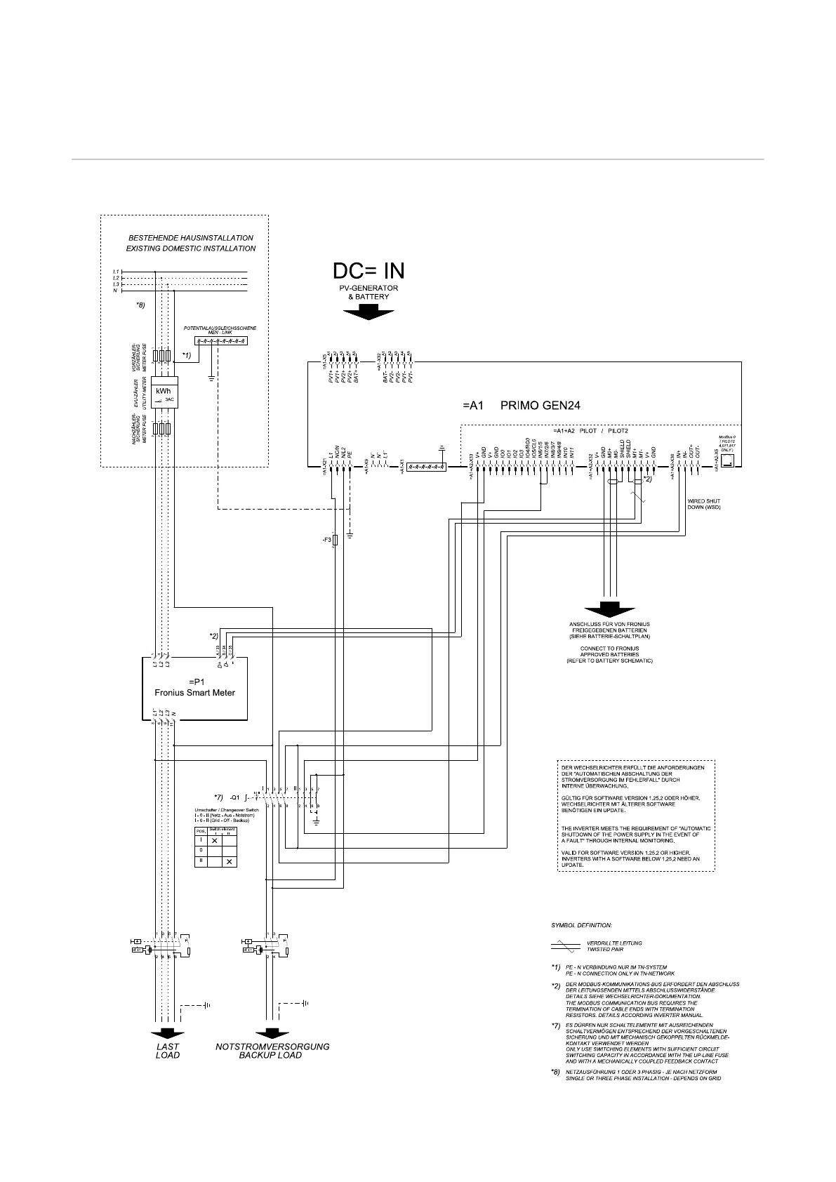
Fronius Primo GEN24 10.0 Plus - Manual Switch to Backup Power 2-Pin Separation, E.g. Germany; Circuit Diagram

Fronius Primo GEN24 10.0 Plus
208 pages
To Next Page IconTo Next Page
To Next Page IconTo Next Page
To Previous Page IconTo Previous Page
To Previous Page IconTo Previous Page
Loading...
Manual switch to backup power 2-pin separation,
e.g. Germany
Circuit Diagram
200

Table of Contents

Related product manuals