EasyManua.ls Logo

Frymaster BIH52 Series - Interface Boards

Frymaster BIH52 Series
115 pages
Print Icon
To Next Page IconTo Next Page
To Next Page IconTo Next Page
To Previous Page IconTo Previous Page
To Previous Page IconTo Previous Page
Loading...
3-2
provide current to the ignition module. Circuitry in the ignition module sends 24VAC to the gas
valve via a normally closed high-limit switch (and, in BIH52 fryers, a normally closed drain safety
switch). Simultaneously, the module causes the ignitor to spark for 4 seconds to light the burner. A
flame sensor verifies the burner is lit by measuring the flow of microamps through the flame. If the
burner does not light (or is extinguished), current to the ignition module is cut, the gas valve closes,
and the ignition module “locks-out” until the power switch is turned off and then back on.
A probe monitors the temperature in the frypot. When the programmed setpoint temperature is
reached, resistance in the probe causes the heat cycle circuitry in the controller to cut off current flow
through the heat relay. This in turn cuts off the 24VAC to the ignition module, causing the gas valve
to close.
H52 Series fryers may be equipped with solid-state analog controls, M100B computers, or M2000
computers.
All fryers in this series have an interface board located in the component box located behind the
control panel.
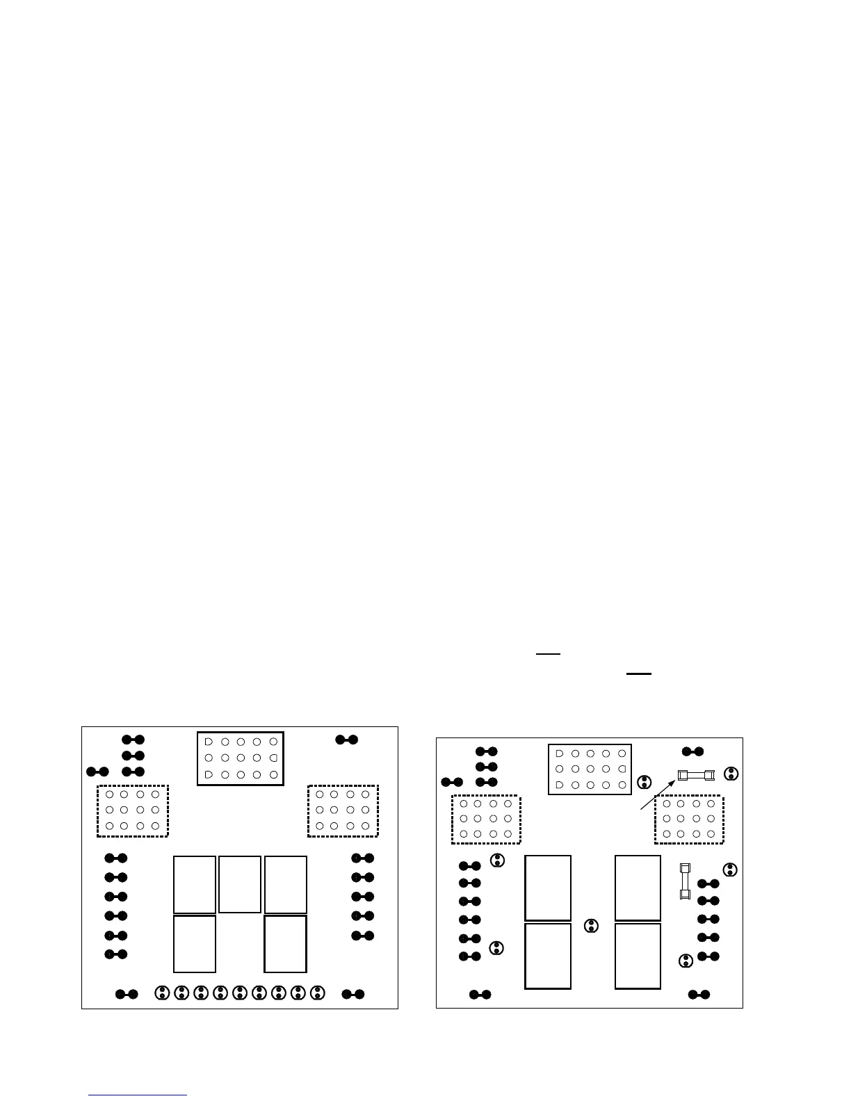
INTERFACE BOARDS
The interface board provides a link between the controller/computer and the fryer’s individual com-
ponents without requiring excessive wiring, and allows the controller to execute commands from one
central point. The H52 Series of fryers has been in production since 1983. Consequently, servicers
are likely to encounter several different interface board designs. Although the boards differ in ap-
pearance, basic functioning and electrical connections are the same from one to another. In late-
2000, a new, unfused, ignition module design was introduced. Consequently, an additional fuse was
added to the design of interface board 806-3398 to compensate. The new, two-fuse board is P/N
106-0386. With the exception of manufactured gas units, no matter what generation board is in the
fryer now, if it becomes necessary to replace the board, either P/N 806-3398 or 106-0386 will be the
replacement part installed. If unit being serviced is equipped with two P/N 807-1006 or 807-2971
ignition modules, either interface board may be used. If the unit is equipped with one P/N 807-3365
or 807-3366 ignition module, interface board 106-0386 should be used. The two boards most likely
to be seen (i.e., the two latest designs) are illustrated below.
K4
K1 K2
SOUND
1
2
3
GND
GND
V2D
PWR
AD
AS
V2S
GND
V1D
PWR
ALR
V1S
GND GV PWR
AL 12V
AIR
24V AL
PWR
GV
GND
J2
EARLIER DESIGN INTERFACE BOARD P/N 806-3398
GND
12 6 3 45
J3
3 6 9 12
2 5 8 11
1 4 7 10
J1
3 6 9 12
2 5 8 11
1 4 7 10
15
12963
14
11852
13
10741
BLOWER
MOTOR
RELAY
K3 K5
HEAT
RELAY
HEAT
RELAY
K4
K1
SOUND
1
2
3
GND
GND
V2D
PWR
AD
AS
V2S
GND
GV
PWR
12V
AIR
24V
PWR
GND
V1D
PWR
ALR
V1S
GV
GND
J2
LATER DESIGN INTERFACE BOARDS P/N 806-3398 and 106-0386
GND
J3
3 6 9 12
2 5 8 11
1 4 7 10
J1
3 6 9 12
2 5 8 11
1 4 7 10
15
12963
14
11852
13
10741
K2 K3
HEAT
RELAY
AND
BLOWER
MOTOR
RELAY
D1
D2
D3
D4
D6
D7
Blower
Motor
2 Amp
D5
HEAT
RELAY
AND
BLOWER
MOTOR
RELAY
F2 Ignition
2 AMP Module
This Fuse is NOT
present on 806-3398 IFB.

Table of Contents

Related product manuals