EasyManua.ls Logo

Frymaster BIH52 Series - Page 61

Frymaster BIH52 Series
115 pages
Print Icon
To Next Page IconTo Next Page
To Next Page IconTo Next Page
To Previous Page IconTo Previous Page
To Previous Page IconTo Previous Page
Loading...
3-44
8050502G
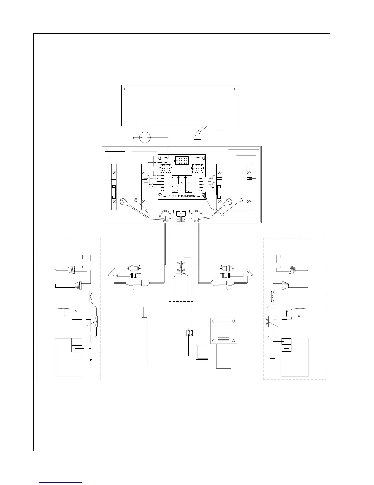
Refer to "PRINCIPAL WIRING
CONNECTIONS" on Page 3-42 for
detail of connection points J1, J2,
J3, C2, C3, and C5.
BIH52/MH52 Main Wiring Diagram (U.S. and Non-CE Export)
MV
14C
BLK
BLOWE
R
SAFETY
DRAIN
SWITCH
12C
BLK
NO
NC
BLK
COM
FOR UNITS WITH NO
SAFETY DRAIN SWITCH
ADD IN-LINE SPLICE
HI-LIMIT
11C
BLK
MV
21
C
5
14C
BLK
WHITE
TO J3 PIN12
T2T1
TO C2 PIN1
TO C2 PIN3
TO C2 PIN12
13C
18C
BLK
NO
NC
BLK
BLK
OIL RETURN HEATER FRONT
MV
MV
GAS
VALVE
DRAIN
SAFETY
SWITCH
HI-LIMIT
COM
FOR UNITS WITH NO
ADD IN-LINE SPLICE
SAFETY DRAIN SWITCH
PROBE
TEMP
RED
WHITE
BLACK
FULL
VAT
TO J3 PIN6
TO J3 PIN2
TO J3 PIN9
COMPUTER GROUND (81C)
GND
VALV
E
VALV
E
ALAR
M
(BURNER
)
ORG
BLK
25V
25V
GND
BLUE
BLK
GRN
BLK
ORG
WHT
LINE VOLTAGE (COM)
LINE VOLTAGE (L1)
DETAIL A-
A
A
A
DETAIL
BLACK
RED
TO J1 PIN2
TO J1 PIN6
TO J1 PIN9
PW
R
G
V
A
L
24
V
K
2
For
D
RL
Y
435
A
L
12
V
D1
G
V
PW
R
K
1
RL
Y
D
12 6
AI
R
B/L
RL
Y
K
5
R
T
B/L
RL
Y
L
T
K
3
K
4
RL
Y
For
D
R
T
L
T
R
T
BLK
ORG
BLK
GND
ORG
V2
S
PWR
GN
D
A
S
A
D
GN
DV2
D
SN
D
J
2
2
GN
D
1
3
SOUND
DEVICE
WHT
BLUE
GRN
J
1
J
3
GND
25
V
25
V
GREEN
BLUE
ALAR
M
VALV
E
VALV
E
(BURNER
)
PROBE
TEMP
DUAL
VAT
COMPUTER OR
CONTROLLER
TO J2
D9
V1
S
AL
R
PWR
V1
D
GN
D
GN
D
GN
D
WHITE WHITE
GAS
VALV
E
WHITE
Old Single-Spark Ignition Module

Table of Contents

Related product manuals