EasyManua.ls Logo

Fuji Xerox DocuCentre-V C3375 - Page 22

Fuji Xerox DocuCentre-V C3375
463 pages
Print Icon
To Next Page IconTo Next Page
To Next Page IconTo Next Page
To Previous Page IconTo Previous Page
To Previous Page IconTo Previous Page
Loading...
1 Before Using the Machine
22
Before Using the Machine
1
Never locate this product in the following places:
z
Near radiators or any other heat sources
z
Near volatile flammable materials such as curtains
z
In the hot, humid, dusty or poorly ventilated environment
z
In the place receiving direct sunlight
z
Near cookers or humidifiers
Locate this product on a level and sturdy surface that can withstand a weight of
288 Kg (maximum weight when Large Size UI Kit, C3 Finisher with Booklet Maker,
Side Tray, and HCF B1 are installed to 3 Tray Module Model). Otherwise, if tilted,
the product may fall over and cause injuries.
Locate this product in a well-ventilated area. Do not obstruct ventilation openings
of the product.
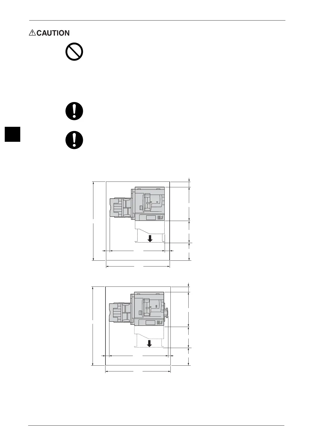
Keep the minimum clearance as follows for ventilation and an access to the power
plug. Unplug the product if an abnormal condition is noted.
1046
1623
70
699
424
100
100 400
1216
With Duplex Automatic Document Feeder B1-C/B1-PC (optional)
(Unit: mm)
1129
1623
70
699
424
100
50 400
1249

Table of Contents

Other manuals for Fuji Xerox DocuCentre-V C3375

Related product manuals