EasyManua.ls Logo

Fujitsu PRIMERGY RX200 S5 - Cable Diagrams; 13.2.1 Cabling for up to 4 HDD Modules

Fujitsu PRIMERGY RX200 S5
72 pages
To Next Page IconTo Next Page
To Next Page IconTo Next Page
To Previous Page IconTo Previous Page
To Previous Page IconTo Previous Page
Loading...
68 Options Guide RX200 S5
Cable diagrams Cabling
© cognitas. Gesellschft für Technik-Dokumentation mbH 2009 Pfad: W:\Anwendungsdaten\FCT\tim_local\work\PICHOL\OBJ_DOKU-4110-001.fm
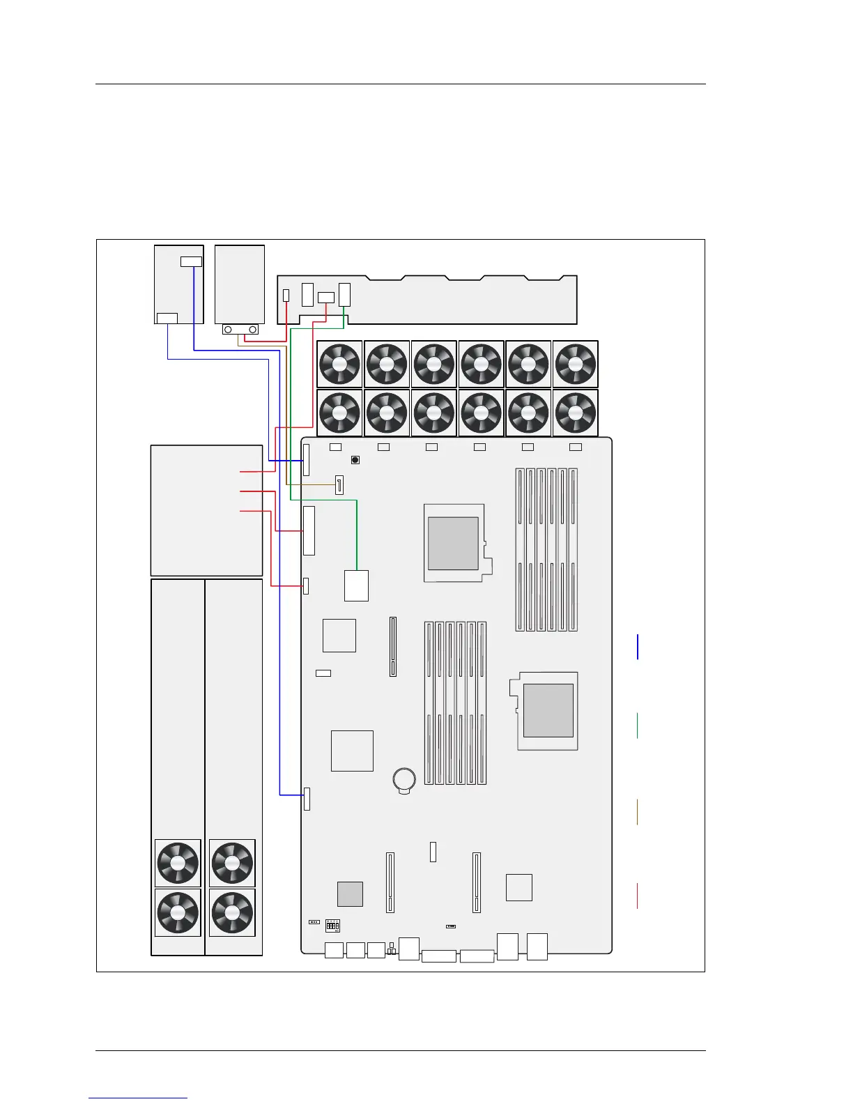
13.2 Cable diagrams
13.2.1 Cabling for up to 4 HDD modules
Figure 41: Cable diagram for 4 HDD modules with onboard SATA controller
SATAPower
SAS
Data
Key:
Front-
panel
CN3
VGA
PSU 1
PSU 2
Power
distribution
board
P2
P3
P1
TPM
Front VGA
Slot 2
Slot 1
Front Panel
CPU 2
CPU 1
SATA
ODD
DIMM 1C
DIMM 2C
DIMM 1B
DIMM 2B
DIMM 1A
DIMM 2A
DIMM 2D
DIMM 1D
DIMM 2E
DIMM 1E
DIMM 2F
DIMM 1F
Fan
1/2
Fan
3/4
Fan
5/6
Fan
7/8
Fan
9/10
Fan
11/12
iRMC
Back-
plane
6x HDD
DVD drive
Slot 3
PWR
PWR CTRL
System Board
D2786
CN2
CN1
SATA1
uSSD

Other manuals for Fujitsu PRIMERGY RX200 S5

Related product manuals