EasyManua.ls Logo

GE 469 - 2-Speed Motor Wiring

GE 469
336 pages
Print Icon
To Next Page IconTo Next Page
To Next Page IconTo Next Page
To Previous Page IconTo Previous Page
To Previous Page IconTo Previous Page
Loading...
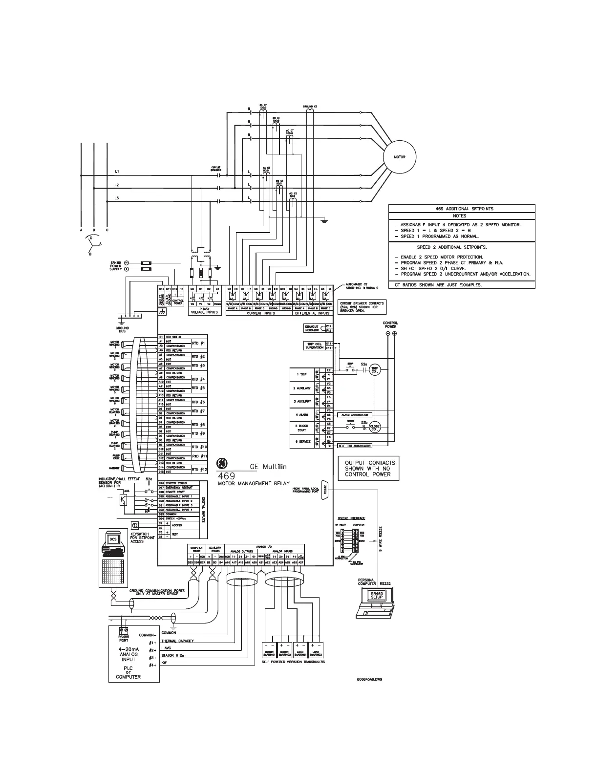
CHAPTER 3: INSTALLATION
469 MOTOR MANAGEMENT RELAY – INSTRUCTION MANUAL 3–27
3.2.14 2-Speed Motor Wiring

Table of Contents

Other manuals for GE 469

Related product manuals