EasyManua.ls Logo

GE EV100 LXT - Page 30

GE EV100 LXT
81 pages
Print Icon
To Next Page IconTo Next Page
To Next Page IconTo Next Page
To Previous Page IconTo Previous Page
To Previous Page IconTo Previous Page
Loading...
30
STATUS CODE
-05
DESCRIPTION
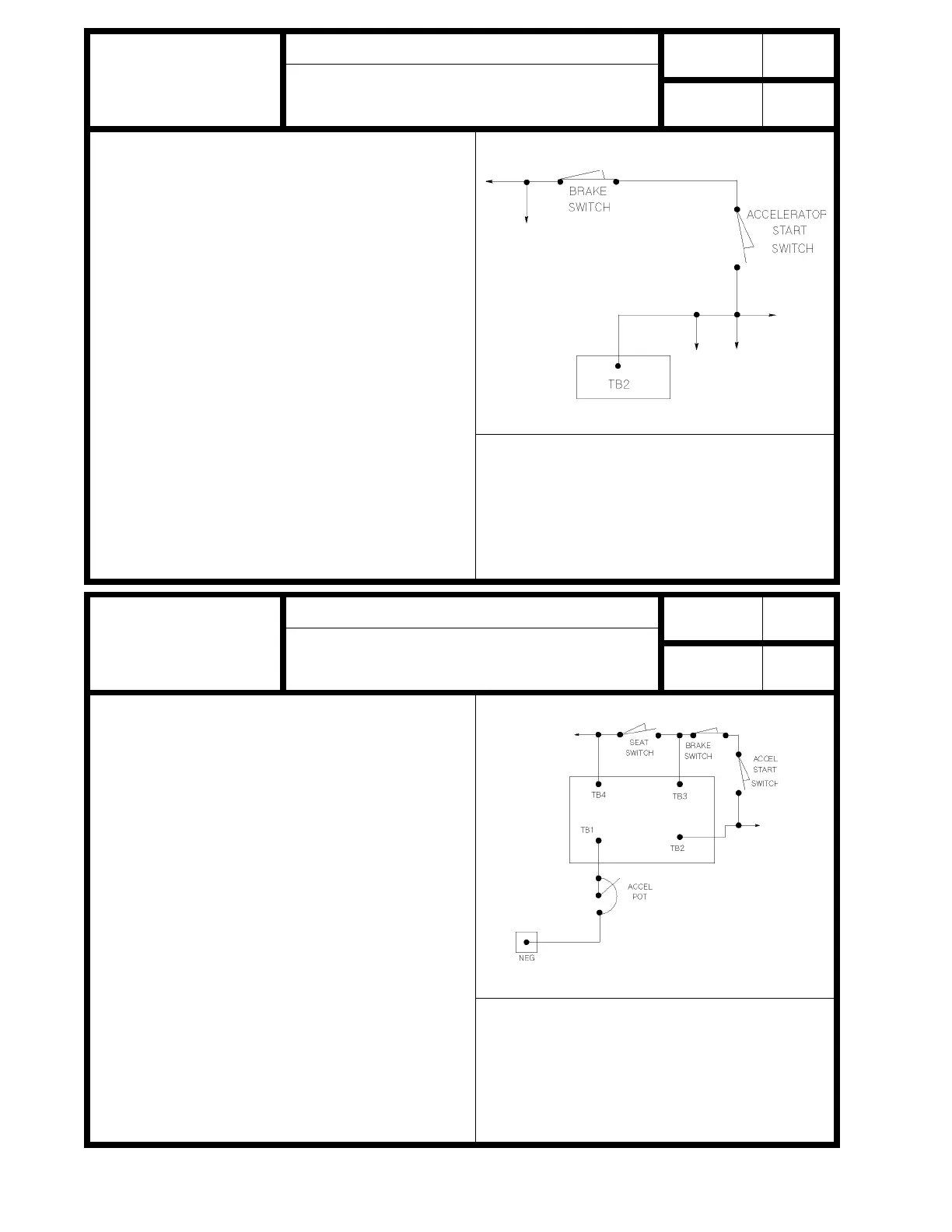
Start switch or brake switch fails to close.
No
MEMORY
RECALL
CONTROL
TYPE
STATUS INDICATION CRITERIA
This status code is when TB1 is less than 2.5 volts and
TB2 is less than 60% battery volts.
Traction
STATUS CODE
-04
DESCRIPTION
Start switch input low after initial start up
No
MEMORY
RECALL
CONTROL
TYPE
Traction
Figure 1
Figure 1
SYMPTOM
Forward or reverse contactor will not pick-up.
POSSIBLE CAUSE
Forward or reverse directional switch closed on initial start
up.
Depress accelerator to close start switch. Status code
will change to 03 if reverse directional switch or to
02 if forward directional switch is closed. If either of
these codes appear, return directional switch to
neutral and then select the desired direction.
Excessive leakage from TB2 to battery negative.
Check voltage at TB2 with key and seat switches
closed and directional switch in neutral. Voltage
should be greater than 60% of battery voltage.
If less than 60% battery voltage. Remove wire and
measure ohmic value from wire to SCR negative.
Value should be less than 22k ohms.
STATUS INDICATION CRITERIA
This status code is displayed when TB2 voltage is less
than 60% of battery volts at initial start-up (seat switch
closure).
SYMPTOM
Forward or reverse contactor will not pick up.
POSSIBLE CAUSE
Defective brake switch circuit.
Check brake switch to insure closure with brake
pedal released.
Check for open circuit or loose connections in
wiring from brake switch to seat switch and TB3,
and from brake switch to start switch.
Defective start switch circuit.
Check start switch to insure closure when accelerator
is depressed.
Check for open circuit or loose connections in
wiring from brake switch to start switch and from
TB2 to start switch.

Table of Contents

Related product manuals