EasyManua.ls Logo

GE EV100 LXT - Accelerator Depressed with no Direction Selected; Accelerator Input Voltage too High

GE EV100 LXT
81 pages
Print Icon
To Next Page IconTo Next Page
To Next Page IconTo Next Page
To Previous Page IconTo Previous Page
To Previous Page IconTo Previous Page
Loading...
31
STATUS CODE
-07
DESCRIPTION
Accelerator input voltage too high.
No
MEMORY
RECALL
CONTROL
TYPE
STATUS INDICATION CRITERIA
This status code is displayed when the accelera-
tor input voltage at TB1 is higher than 3.7 volts,
and a directional contactor is picked up.
Traction
STATUS CODE
-06
DESCRIPTION
Accelerator depressed with no direction selected.
No
MEMORY
RECALL
CONTROL
TYPE
STATUS INDICATION CRITERIA
Traction
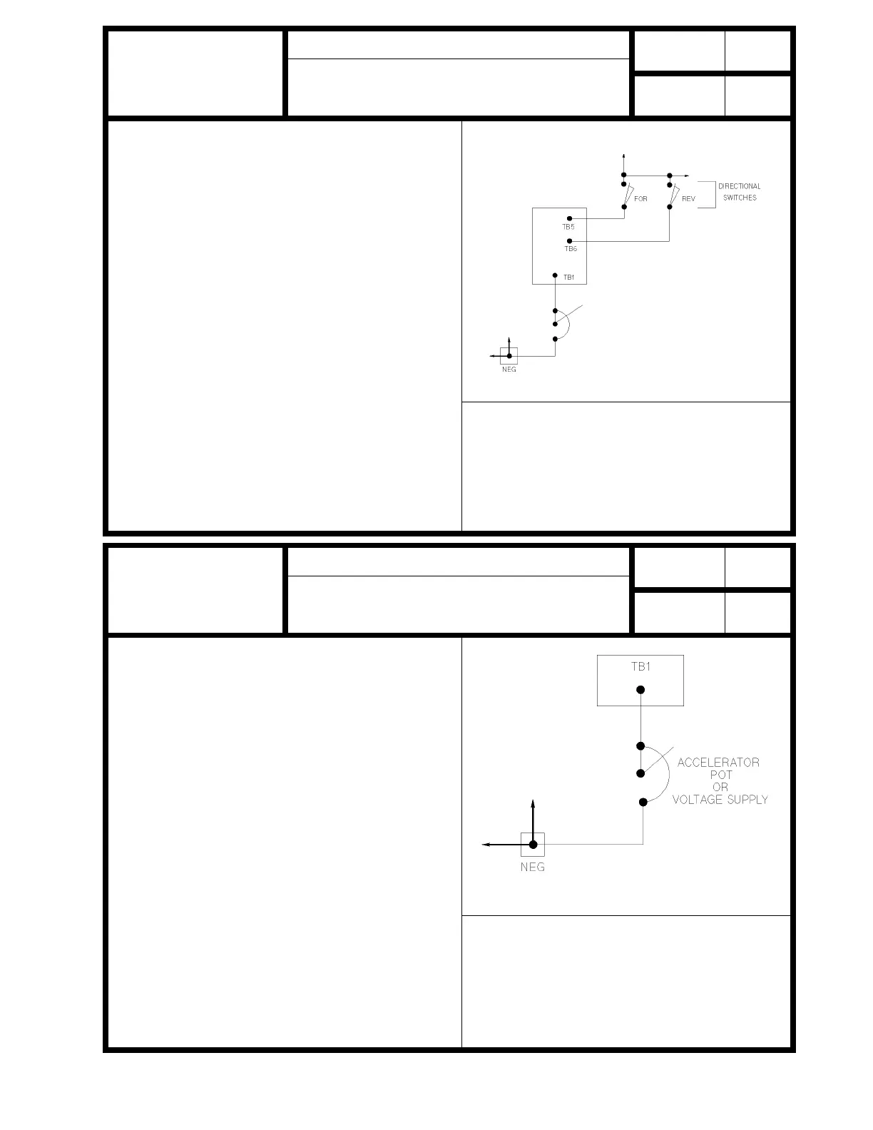
Figure 1
Figure 1
SYMPTOM
Forward or reverse contactor will not pick up.
POSSIBLE CAUSE
Accelerator pedal is depressed before closing forward or
reverse directional switch.
Status code will disappear when directional switch
is closed or when accelerator pedal is
released.
Defective directional switch
Check forward or reverse switch to insure closure
when direction is selected.
Open circuit between directional switch(s) and battery
positive or between directional switch(s) and TB5 or TB6.
Check all control wires and connections shown in
Figure 1.
SYMPTOM
Forward or reverse contactor picks up but control will not operate
when accelerator pedal is depressed or status code -07 is displayed
then disappears when the vehicle starts to accelerate.
POSSIBLE CAUSE
Accelerator input mis-adjusted or defective.
Input voltage at TB1 should be less than 3.7 volts. Ad-
just or replace accelerator unit to insure that the
voltage at TB1 will vary from 3.5 volts to less than .5
volts when the pedal is depressed.
Open circuit between battery negative and TB1 in accelerator input
circuit.
Check for broken wires or loose connections or open
potentiometer / voltage supply in the circuit shown in
Figure 1.
Short circuit from battery positive to wiring in accelerator input
circuit.
Disconnect wire from TB1 and measure voltage at wire to
negative. Should be zero volts for potentiometer type and
less than 3.7 volts for solid state type accelerator input.
This status code will be displayed when TB5 and TB6
are less than 60% of the battery volts, and TB1 is less
than 2.5 volts.

Table of Contents

Related product manuals