EasyManua.ls Logo

GE EV100 LXT - Status Code 52; Status Code 53

GE EV100 LXT
81 pages
Print Icon
To Next Page IconTo Next Page
To Next Page IconTo Next Page
To Previous Page IconTo Previous Page
To Previous Page IconTo Previous Page
Loading...
42
STATUS CODE
-53
DESCRIPTION
1 REC fails to turn off during plug cycle.
Yes
MEMORY
RECALL
CONTROL
TYPE
Traction
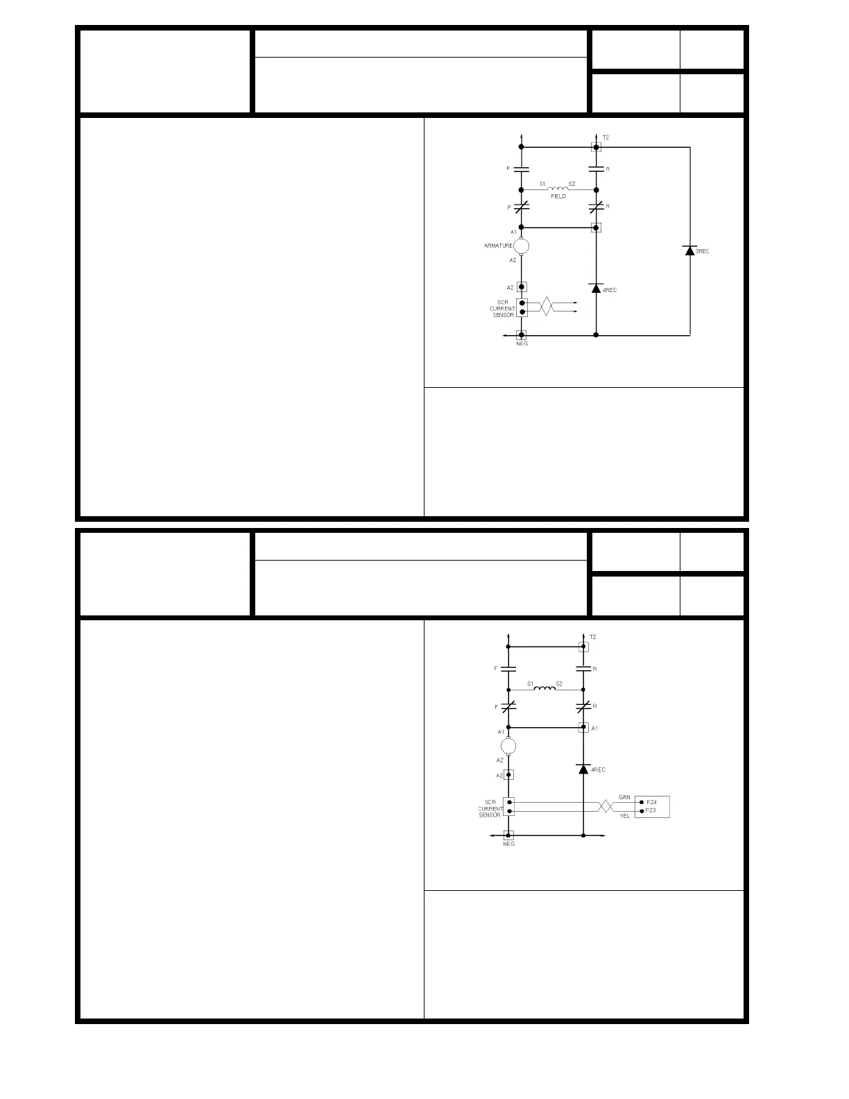
Figure 1
STATUS INDICATION CRITERIA
This status code is displayed when any failure of 1
REC to turn off during plug cycle.
SYMPTOM
Forward or reverse contactor opens and closes, then opens and can
only close by opening and closing the key switch.
POSSIBLE CAUSE
1 REC turn off failure not related to plugging.
Stall vehicle in both directions and note any status codes
displayed that may more closely define the failure mode.
Troubleshoot per new status code.
1 REC turn off related to plugging.
Check 4 REC circuit for open 4 REC, loose or open cable/
bus connections.
Check current sensor for loose or open connection in power
circuit. Check yellow and green wire from sensor to logic
card for open and loose connection.
Defective motor circuit.
Check motor circuit for open or loose connections.
Check motor brushes for proper seating.
F or R contactor power bouncing open.
Insure that F and R contactor does not bounce open during
vehicle operation (ie: traveling over speed bumps and dock
plates).
STATUS CODE
-52
DESCRIPTION
Excessive capacitor voltage when motor current is low.
Yes
MEMORY
RECALL
CONTROL
TYPE
Traction
Figure 1
SYMPTOM
Forward or reverse contactors open and close, then can
only be closed by opening and closing the key switch.
POSSIBLE CAUSE
Excessive source inductance.
Tag lines without filters are being used.
Battery cables are too long.
Defective 4 REC circuit.
Check for shorted 4 REC.
Check for open circuit or loose connection in 4
R E C circuit.
Defective 3 REC circuit.
Check for open circuit or loose connection in 3
R E C circuit.
STATUS INDICATION CRITERIA
This status code is displayed when capacitor volts
exceed 225 volts and motor current is less than 200
amps.

Table of Contents

Related product manuals