EasyManua.ls Logo

GE EV100 LXT - Status Code 124; Status Code 125

GE EV100 LXT
81 pages
Print Icon
To Next Page IconTo Next Page
To Next Page IconTo Next Page
To Previous Page IconTo Previous Page
To Previous Page IconTo Previous Page
Loading...
52
STATUS CODE
-125
DESCRIPTION
1A contactor does not drop out or drops out slowly.
No
MEMORY
RECALL
CONTROL
TYPE
STATUS INDICATION CRITERIA
This status code is displayed when 1A contactor drop
out time exceeds .060 seconds.
Pump
STATUS CODE
-124
DESCRIPTION
T2 voltage low. (Greater than 12% battery volts.)
No
MEMORY
RECALL
CONTROL
TYPE
Pump
Figure 1
Figure 1
SYMPTOM
Control does not operate. Status code may alternate
between code 23 and code 24. Complete checks for 24, if
the problem is not found, perform code 23 check.
POSSIBLE CAUSE
Defective Pump contactor.
Pump power tips fail to close because:
1) Welded normally closed power tips.
2) Binding contactor tip assembly.
3) Defective Pump contactor coil.
( See status code 123)
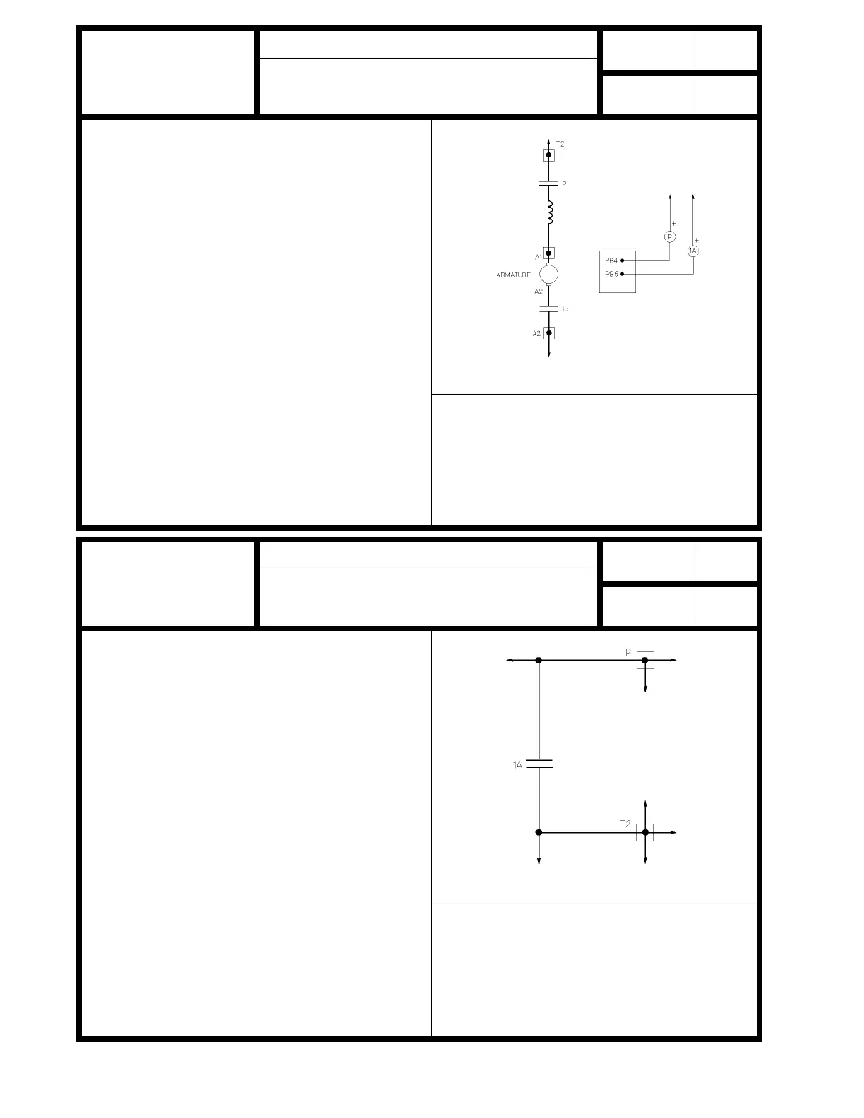
Open motor circuit
Check for open circuit or loose connection in motor
circuit from the A1 connection to the A2 connection
on the control panel.
Defective 1A contactor.
Perform checks as outlined in status 123.
STATUS INDICATION CRITERIA
This status code is displayed when T2 volts is greater
than 12% of battery volts and the pump driver is
energized.
SYMPTOM
Short tip life on Pump or 1A contactor. Status code 46
displayed and no fault found.
POSSIBLE CAUSE
Note: This status code can only be found by using the
handset and looking at function 1. This status code is
furnished as a troubleshooting aid for status code 146.
Defective 1A contactor
Check 1A contactor for binding or slow operation
when dropping out.

Table of Contents

Related product manuals