EasyManua.ls Logo

GE EV100 LXT - Status Code 74; Status Code 75; Regen Contactor Picks up too Slow; 1 REC Fails to Turn off During Regen

GE EV100 LXT
81 pages
Print Icon
To Next Page IconTo Next Page
To Next Page IconTo Next Page
To Previous Page IconTo Previous Page
To Previous Page IconTo Previous Page
Loading...
46
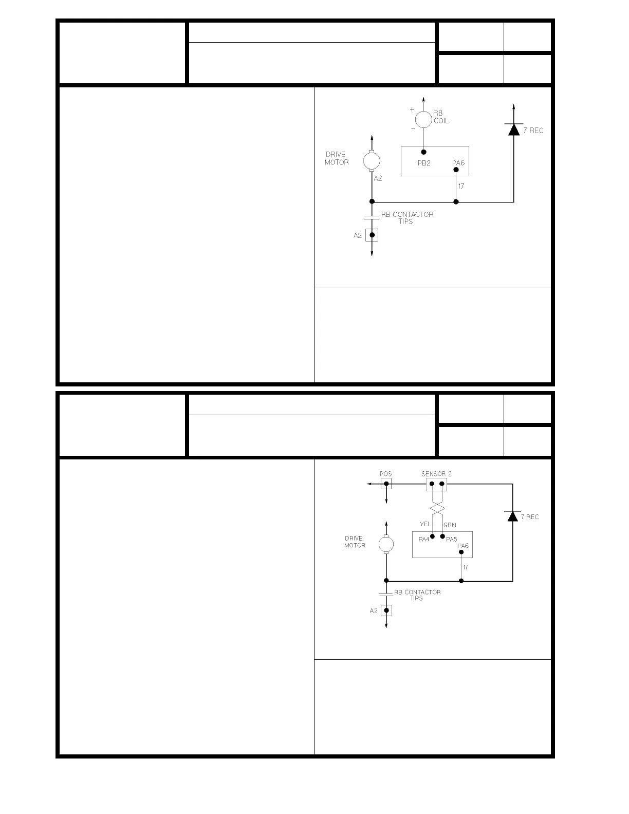
STATUS CODE
-74
DESCRIPTION
Regen contactor picks up too slow.
Yes
MEMORY
RECALL
CONTROL
TYPE
Traction
Figure 1
STATUS INDICATION CRITERIA
This status code is displayed when the RB contactor
power tips do not close within 100 milliseconds after
power is applied to the RB contactor coil.
SYMPTOM
Forward or reverse contactor opens and closes, then opens
and can only close by opening and closing the key switch.
POSSIBLE CAUSE
Defective RB contactor.
Check RB contactor for smoothness of operation
and excessive wear on moving parts.
Intermittent PA6 input.
Check for loose connections in PA6 circuit from
PA6 to RB contactor A2 connection.
Defective RB contactor coil circuit.
Check RB contactor coil for proper ohmic value. It
should be 10-14 ohms.
Check coil connection from PB2 to RB coil (-) for
loose connections.
Check coil connections from battery positive to RB
coil (+) for loose connections.
STATUS CODE
-75
DESCRIPTION
1 REC fails to turn off during Regen.
Yes
MEMORY
RECALL
CONTROL
TYPE
Traction
Figure 1
STATUS INDICATION CRITERIA
This status code is displayed when any failure of 1
REC to turn off during regen cycle.
SYMPTOM
Forward or reverse contactor opens and closes, then opens and can
only close by opening and closing the key switch.
POSSIBLE CAUSE
1 REC turn off failure not related to regen.
Stall vehicle in both directions and note any status codes
displayed that may more closely define the failure mode.
Trouble shoot per new status code.
1 REC turn off related to regen.
Check for loose connections on all regen power circuits from
battery positive to RB contactor A2 connection.
Check for loose connection on the following regen input
circuits.
Yellow wire from sensor 2 to PA4.
Green wire from sensor 2 to PA5.
Wire 17 from RB contactor to PA6.
Defective motor circuit.
Check motor circuit for open or loose connections.
Check motor brushes for proper seating.
F or R contactor power bouncing open.
Insure that F and R contactor does not bounce open during
vehicle operation (ie: traveling over speed bumps and dock
plates).

Table of Contents

Related product manuals