EasyManua.ls Logo

GE EV100 LXT - Status Code 149; Status Code 150

GE EV100 LXT
81 pages
Print Icon
To Next Page IconTo Next Page
To Next Page IconTo Next Page
To Previous Page IconTo Previous Page
To Previous Page IconTo Previous Page
Loading...
57
STATUS CODE
-149
DESCRIPTION
No
MEMORY
RECALL
CONTROL
TYPE
Pump
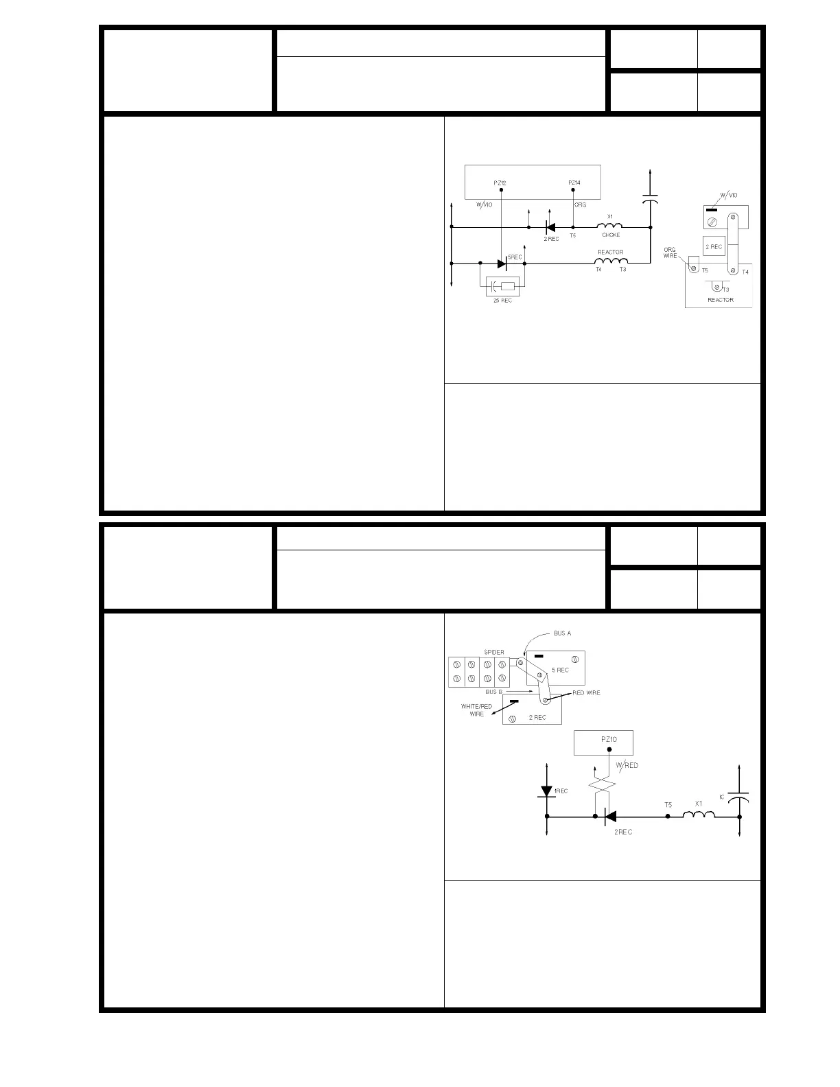
Figure 1
SYMPTOM
Pump contactor will open and close, then open and then
can only be closed by opening and closing the key
switch.
POSSIBLE CAUSE
Defective 5 REC circuit
Check for shorted 5 REC.
Check for shorted 5 REC snubber ( 25 REC ).
Check that 5 REC will gate on.
Check for open circuit or loose connection
between 5 REC gate and PZ12 ( white/violet wire
).
Shorted 2 REC circuit.
Check 2 REC and 2 REC snubber ( 22 REC ) for
short circuit.
Defective capacitor circuit.
Check for open capacitor.
Check for loose connections at capacitor terminals.
STATUS INDICATION CRITERIA
This status code is displayed when the 5 REC circuit
fails to turn on.
5 REC does not turn on properly
STATUS CODE
-150
DESCRIPTION
No
MEMORY
RECALL
CONTROL
TYPE
Pump
Figure 1
SYMPTOM
Pump contactor picks up. Control does not operate.
POSSIBLE CAUSE
Defective 2 REC circuit.
Open circuit or loose connection between spider
assembly and 5 REC (BUS A).
Open circuit or loose connection between 5 REC
and 2 REC.
Open circuit or loose connection between 2 REC
and PZ11 (red wire) and between 2 REC gate and
PZ10 (white/red wire).
Check 2 REC to insure that it will gate on.
STATUS INDICATION CRITERIA
This status code is displayed when 2 REC circuit fails
to turn on at initial start up.
Capacitor volts low .

Table of Contents

Related product manuals