EasyManua.ls Logo

GE EV100 LXT - Status Code 46; Status Code 47; Look Ahead Test for T2 Volts; 2 REC Does Not Turn Properly

GE EV100 LXT
81 pages
Print Icon
To Next Page IconTo Next Page
To Next Page IconTo Next Page
To Previous Page IconTo Previous Page
To Previous Page IconTo Previous Page
Loading...
39
STATUS CODE
-47
DESCRIPTION
No
MEMORY
RECALL
CONTROL
TYPE
Traction
STATUS CODE
-46
DESCRIPTION
Look ahead test for T2 volts. ( Greater than 85% of
battery volts)
No
MEMORY
RECALL
CONTROL
TYPE
Traction
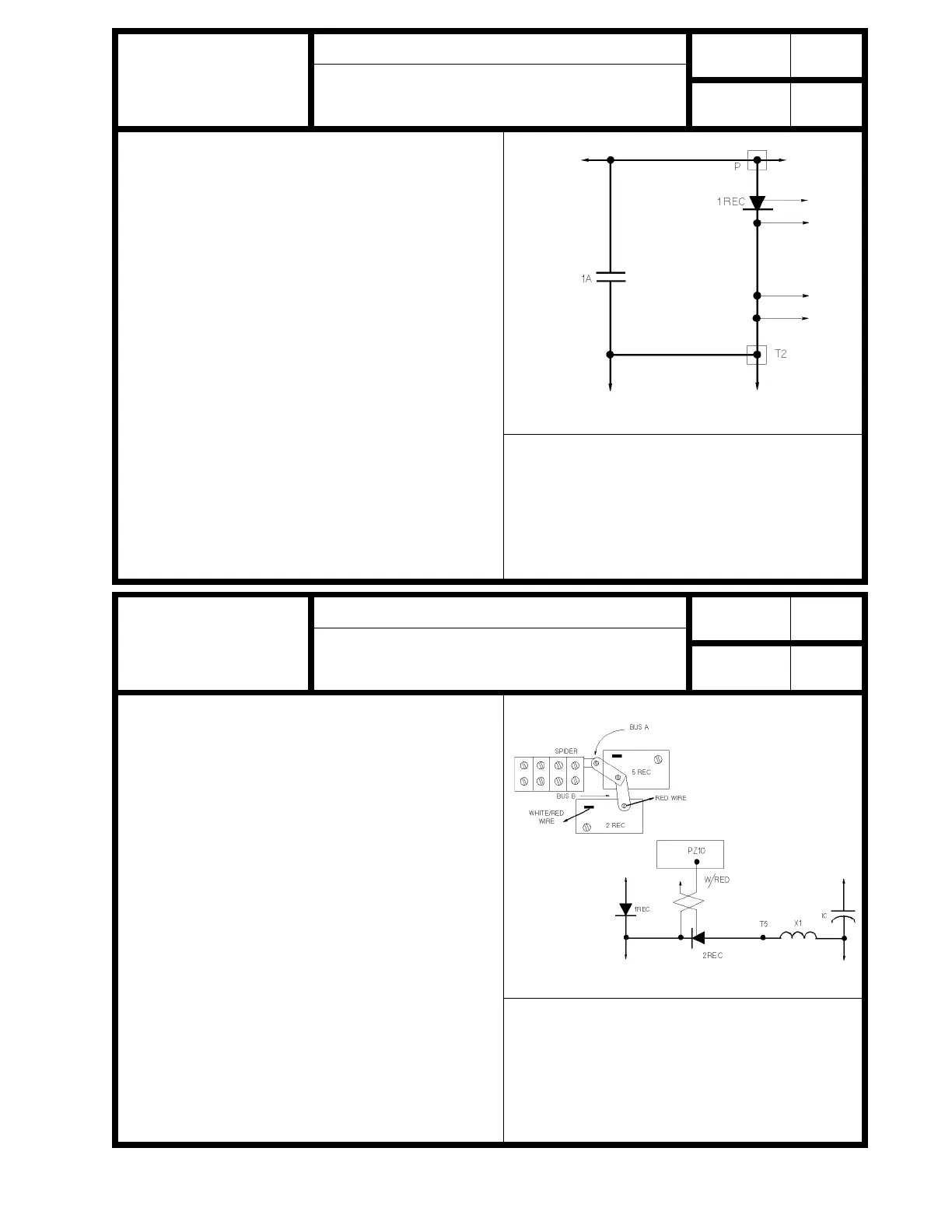
Figure 1
Figure 1
SYMPTOM
Forward or reverse contactor will not pick up.
POSSIBLE CAUSE
Defective 1 REC.
Check for shorted 1 REC.
Check for defective 1 REC insulator (co-therm)
that may short 1 REC heat sink to base plate.
Defective 1A contactor.
Check for welded 1A contactor power tips.
SYMPTOM
Forward or reverse contactor will open and close, then
open and then can only be closed by opening and closing
the key switch.
POSSIBLE CAUSE
Defective 2 REC circuit.
Check that 2 REC will gate on.
Check for open circuit or loose connection
between 2 REC gate and PZ10. (white/red wire)
Check for open circuit or loose connection 1 REC
and 1C through the 2 REC circuit.
F or R contactor or power tips bouncing open.
Check that power tips on F and R contactor power
tips do not bounce open during operation (ie:
travel over speed bumps or dock plates).
STATUS INDICATION CRITERIA
This status code is displayed when the voltage at T2 is
greater than 85% of battery volts.
STATUS INDICATION CRITERIA
This status code is displayed when the 2 REC fails to
turn on.
2REC does not turn properly

Table of Contents

Related product manuals