EasyManua.ls Logo

GE EV100 LXT - Status Code 141; Status Code 142

GE EV100 LXT
81 pages
Print Icon
To Next Page IconTo Next Page
To Next Page IconTo Next Page
To Previous Page IconTo Previous Page
To Previous Page IconTo Previous Page
Loading...
53
STATUS CODE
-141
DESCRIPTION
No
MEMORY
RECALL
CONTROL
TYPE
Pump
Figure 1
STATUS INDICATION CRITERIA
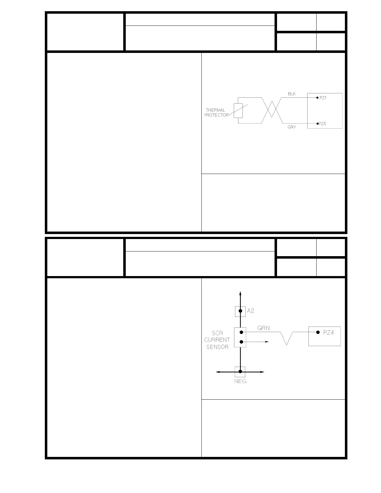
This status code is displayed when the voltage
between PZ1 and PZ5 is greater than 1.8 volts.
Open thermal protector (TP) or control over temperature.
SYMPTOM
Reduced or no power to pump motor in SCR range.
POSSIBLE CAUSE
Open thermal protector circuit.
Check for loose connection or broken wire be-
tween:
Black wire-Thermal proctor and PZ1.
Gray wire-Thermal proctor and PZ5.
Defective thermal protector.
Disconnect wires from PZ1 and PZ5. At room
temperature (25
o
C or 75
o
F) measure resistance
between black and gray wire. Replace TP if ohmic
value is greater than 300 ohms.
SCR is in thermal cut-back.
Allow control to cool, status code should disap-
pear.
STATUS CODE
-142
DESCRIPTION
Control motor current sensor input missing.
No
MEMORY
RECALL
CONTROL
TYPE
Pump
Figure 1
SYMPTOM
No power to pump motor in SCR range.
POSSIBLE CAUSE
Open sensor wire circuit to PZ4.
Check for loose connection or broken wire (green
wire) from current sensor to PZ4 on the logic card.
STATUS INDICATION CRITERIA
This status code is displayed when voltage between
PY7 and negative is greater than 1.6 volts with no
current flowing in the motor circuit.

Table of Contents

Related product manuals