EasyManua.ls Logo

GE EV100 LXT - Status Code 76; Status Code 90; Capacitor Overvoltage During Regen; User Defined Status Code

GE EV100 LXT
81 pages
Print Icon
To Next Page IconTo Next Page
To Next Page IconTo Next Page
To Previous Page IconTo Previous Page
To Previous Page IconTo Previous Page
Loading...
47
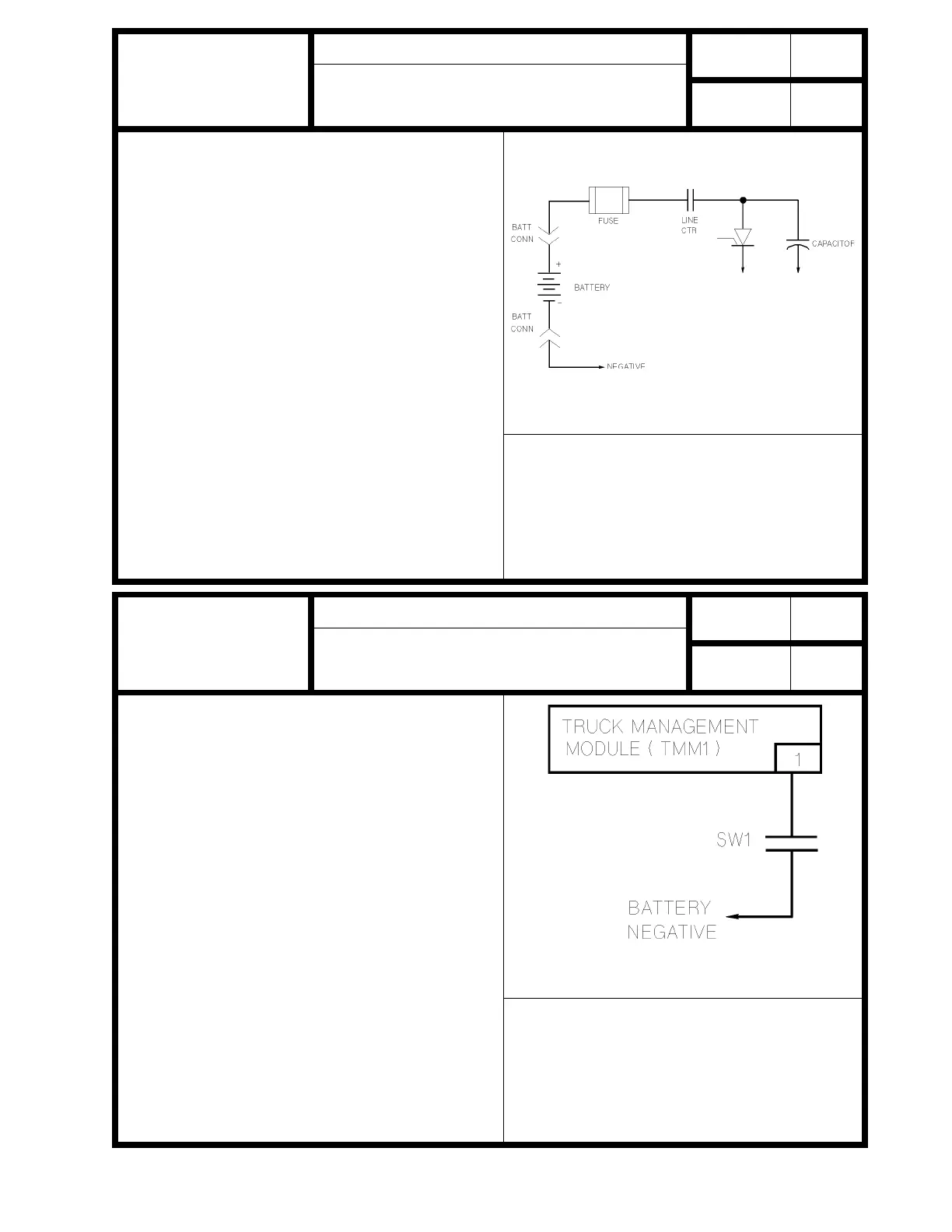
STATUS CODE
-90
DESCRIPTION
User defined status code - see OEM instructions manual.
No
MEMORY
RECALL
CONTROL
TYPE
TMM
Figure 1
SYMPTOM
Status code flashes on and off.
POSSIBLE CAUSE
User defined status code is displayed by switch closure or
motor brush sensor closure to negative.
See OEM instruction manual for corrective action
required.
Other Causes:
Terminal 1 shorted to negative.
Defective input switch (shorted).
Defective TMM card.
NOTE: When SCR pump control is used with internal
TMM function, input terminal is PA3 on pump logic
card.
STATUS INDICATION CRITERIA
This status code is displayed when the voltage at
terminal 1 of TMM is at zero volts.
STATUS CODE
-76
DESCRIPTION
Capacitor overvoltage during Regen.
Yes
MEMORY
RECALL
CONTROL
TYPE
Traction
Figure 1
STATUS INDICATION CRITERIA
This status code is displayed when capacitor voltage is
greater than 225 volts during the regen cycle.
SYMPTOM
Forward or reverse contactor opens and closes, then opens
and can only close by opening and closing the key switch
POSSIBLE CAUSE
Intermittent connection in battery power circuit.
Check battery power circuit, both positive and
negative for loose connections.
Check power fuse, battery connectors, line
contactors, and etc., for possible opening during
regen cycle.
Excessive source inductance.
Check for unfiltered tag lines.
Check for long battery cables.

Table of Contents

Related product manuals