EasyManua.ls Logo

GE EV100 LXT - Status Code 42; Status Code 43; Control Motor Current Sensor Input Missing

GE EV100 LXT
81 pages
Print Icon
To Next Page IconTo Next Page
To Next Page IconTo Next Page
To Previous Page IconTo Previous Page
To Previous Page IconTo Previous Page
Loading...
37
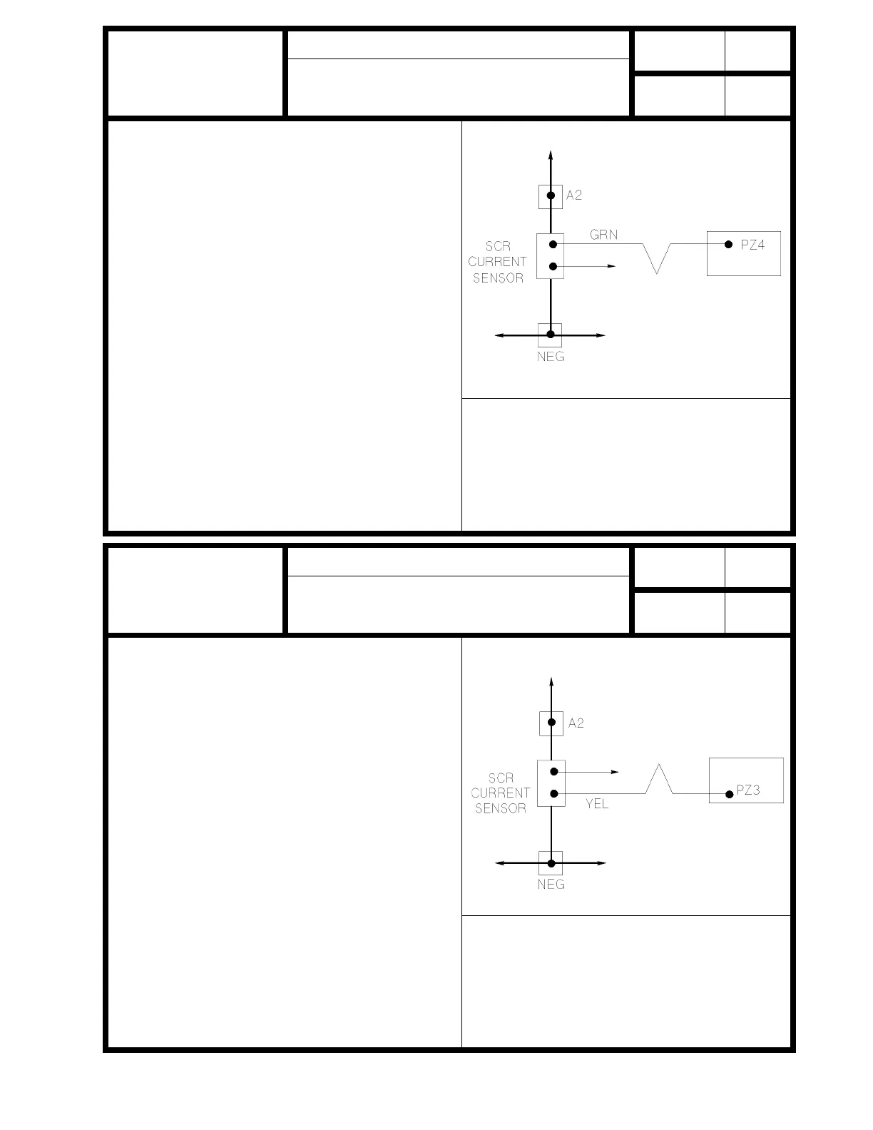
STATUS CODE
-43
DESCRIPTION
No
MEMORY
RECALL
CONTROL
TYPE
Traction
STATUS CODE
-42
DESCRIPTION
Control motor current sensor input missing.
No
MEMORY
RECALL
CONTROL
TYPE
Traction
Figure 1
Figure 1
SYMPTOM
No power to traction motor in SCR range.
POSSIBLE CAUSE
Open sensor wire circuit to PZ4.
Check for loose connection or broken wire (green
wire) from current sensor to PZ4 on the logic card.
STATUS INDICATION CRITERIA
This status code is displayed when voltage between
PY7 and negative is greater than 1.6 volts with no
current flowing in the motor circuit.
Control motor current sensor input missing.
STATUS INDICATION CRITERIA
This status code is displayed when voltage between
PY7 and negative is less than .84 volts with no
current flowing in motor circuit.
SYMPTOM
Stall currents in SCR range higher than normal and
uncontrollable with C/L adjustment.
POSSIBLE CAUSE
Open sensor wire circuit to PZ3.
Check for loose connections or broken wire (yellow
wire) from current sensor to PZ3 on logic card.

Table of Contents

Related product manuals