EasyManua.ls Logo

GE EV100 LXT - Status Code 72; Status Code 73

GE EV100 LXT
81 pages
Print Icon
To Next Page IconTo Next Page
To Next Page IconTo Next Page
To Previous Page IconTo Previous Page
To Previous Page IconTo Previous Page
Loading...
45
STATUS CODE
-72
DESCRIPTION
Regen contactor does not pick up.
Yes
MEMORY
RECALL
CONTROL
TYPE
Traction
Figure 1
STATUS INDICATION CRITERIA
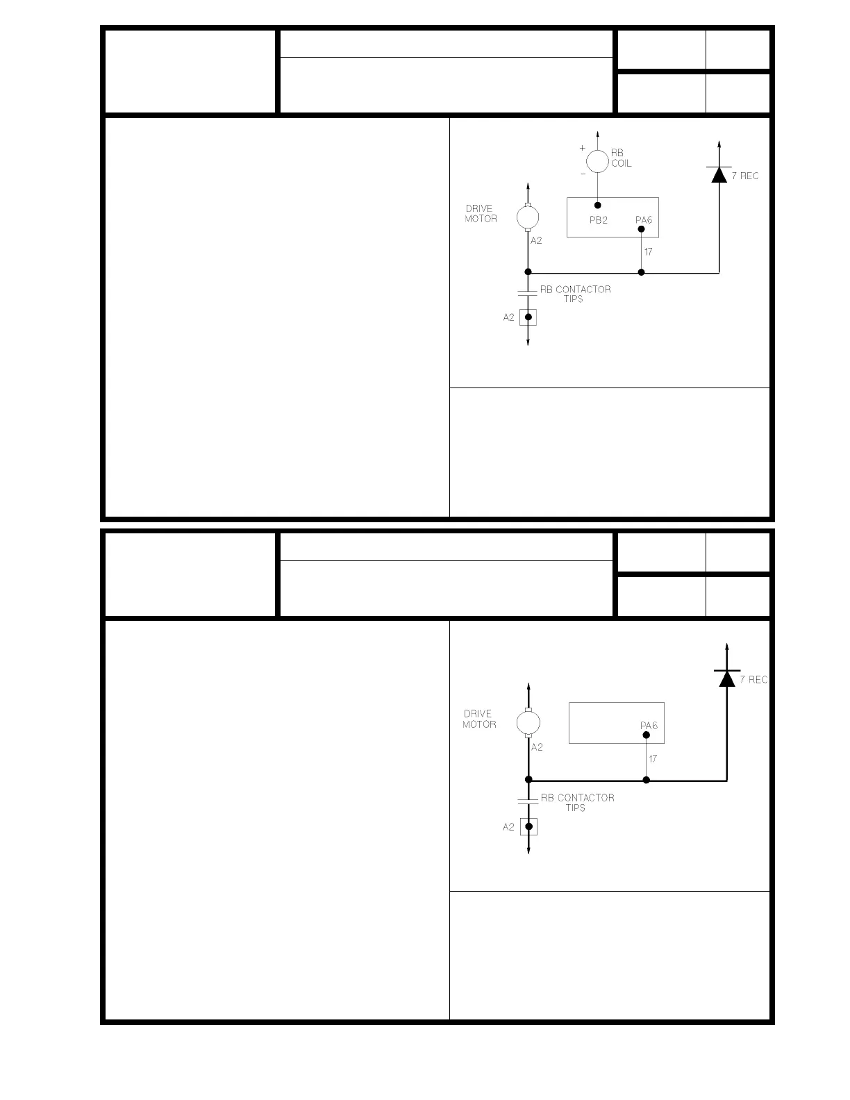
This status code is displayed when logic card is in run
mode and 2.5 volts or greater is present at PA6.
SYMPTOM
Regen control does not operate.
POSSIBLE CAUSE
Open connection in the PA6 circuit.
Check for open circuit or loose connection between
PA6 and the A2 connection of the RB contactor.
Check for open circuit or loose connection between
7 REC and the A2 connection of the RB contactor.
STATUS CODE
-73
DESCRIPTION
Regen contactor does not drop out or drops out slowly.
Yes
MEMORY
RECALL
CONTROL
TYPE
Traction
Figure 1
STATUS INDICATION CRITERIA
This status code is displayed when the RB contactor
power tips fail to open after 100 milliseconds after
power is removed from the RB contactor coil.
SYMPTOM
Forward or reverse contactor opens and closes, then opens
and can only close by opening and closing the key
switch.
POSSIBLE CAUSE
Defective RB contactor.
Check RB contactor for smoothness of operation
and excessive wear on moving parts.
Intermittent PA6 input.
Check for loose connections in PA6 circuit from
PA6 to RB contactor A2 connection.

Table of Contents

Related product manuals