EasyManua.ls Logo

GE MI-869

GE MI-869
552 pages
To Next Page IconTo Next Page
To Next Page IconTo Next Page
To Previous Page IconTo Previous Page
To Previous Page IconTo Previous Page
Loading...
2–18 869 MOTOR PROTECTION SYSTEM – INSTRUCTION MANUAL
ELECTRICAL INSTALLATION CHAPTER 2: INSTALLATION
Ground and Sensitive Ground CT Inputs
There are two dedicated ground inputs referred to throughout this manual as the Ground
Current (1A/5A secondary) and the Sensitive Ground (50:0.025) inputs.
Before planning to make any ground connections, be aware that the relay automatically
cal
culates the neutral (residual) current from the sum of the three phase current phasors,
which is used by the Neutral IOC and TOC which are both suitable for the ground fault
detection.
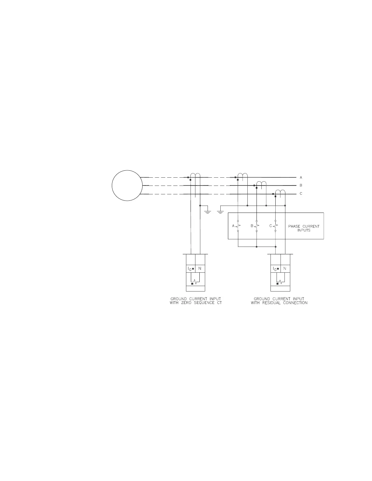
The following figures show two possible ground connections using the ground current
input
(Terminals J7 and J8) and sensitive ground connections using the sensitive ground
current input (Terminals K7 and K8).
The ground input (Terminals J7 and J8) is used in conjunction with a zero sequence CT (core
bal
ance) as a source, or in the neutral of wye-connected source CTs. When using the
residual connection, set the Ground CT Primary setpoint to a value equal to the Phase CT
Primary setpoint. Note that only 1A and 5A secondary CTs may be used for the residual
connection.
Figure 2-19: Ground Current Input Connections
Alternatively, the 50:0.025 ground CT input has been designed for sensitive ground current
det
ection on high resistance grounded systems where the GE Digital Energy 50:0.025 core-
balance CT is to be used.
For example, in mining applications where ear
th leakage current must be measured for
personnel safety, primary ground current as low as 0.5 A primary may be detected with the
GE Digital Energy 50:0.025 CT. Only one ground CT input tap must be used on a given unit.
Note that when this CT input is selected for the Ground Fault function, fixed ratio of
50:0.025 A is used by the relay.
89$1.cdr
869
J1
J2
J3
J4
J5
J7
J6
J8J7 J8
MOTOR
GROUND GROUND

Table of Contents

Related product manuals