EasyManua.ls Logo

Gemsy 500 - Page 153

Gemsy 500
Print Icon
To Next Page IconTo Next Page
To Next Page IconTo Next Page
To Previous Page IconTo Previous Page
To Previous Page IconTo Previous Page
Loading...
Parametr
Bajt wysoki
Parametr
Bajt niski
Domyśl
ne
Zakres
Uwaga
4
0
031
Zwiększenie momentu
obrotowego przy niskiej
prędkości : 0brak działania
1~3131 poziomów zwiększania momentu
obrotowego
5
1
01
Tryb zatrzymania szpilki
0Tryb stałej prędkości fastrygowania (w
przenoszeniu
przeniesienie, zatrzymanie nie jest
precyzyjne) 1tryb ciągnięcia w
tyłPMX
150 0 ~800 Przycisk poleceń, aby wprowadzić połowę czasu
igły
7 180 0 ~800 Przycisk poleceń, aby wprowadzić czas igły
Działanie
1
0
012
Parametr przekładania
0brak działania
1Pobierz parametry ( panel będzie
parametr z panelu do sterownika )
2
Wgraj parametry ( panel będzie miał parametry
ze sterownika do panelu)
2
0
1, 2, XXXX
Przywrócić parametr przechowywania(Przywróć
tylko parametry operatorom i sprzedawcom oraz
konserwację)
Pasek płaski 1000/ Bezpośredni napęd płaski
2000
3
0
1, 2
Zapasowy parametr bieżący jako parametr
użytkownika dla
przywrócić (przywróć)
Uwaga: Ponad tym parametrem „6x” pracy nie jest zapisane.
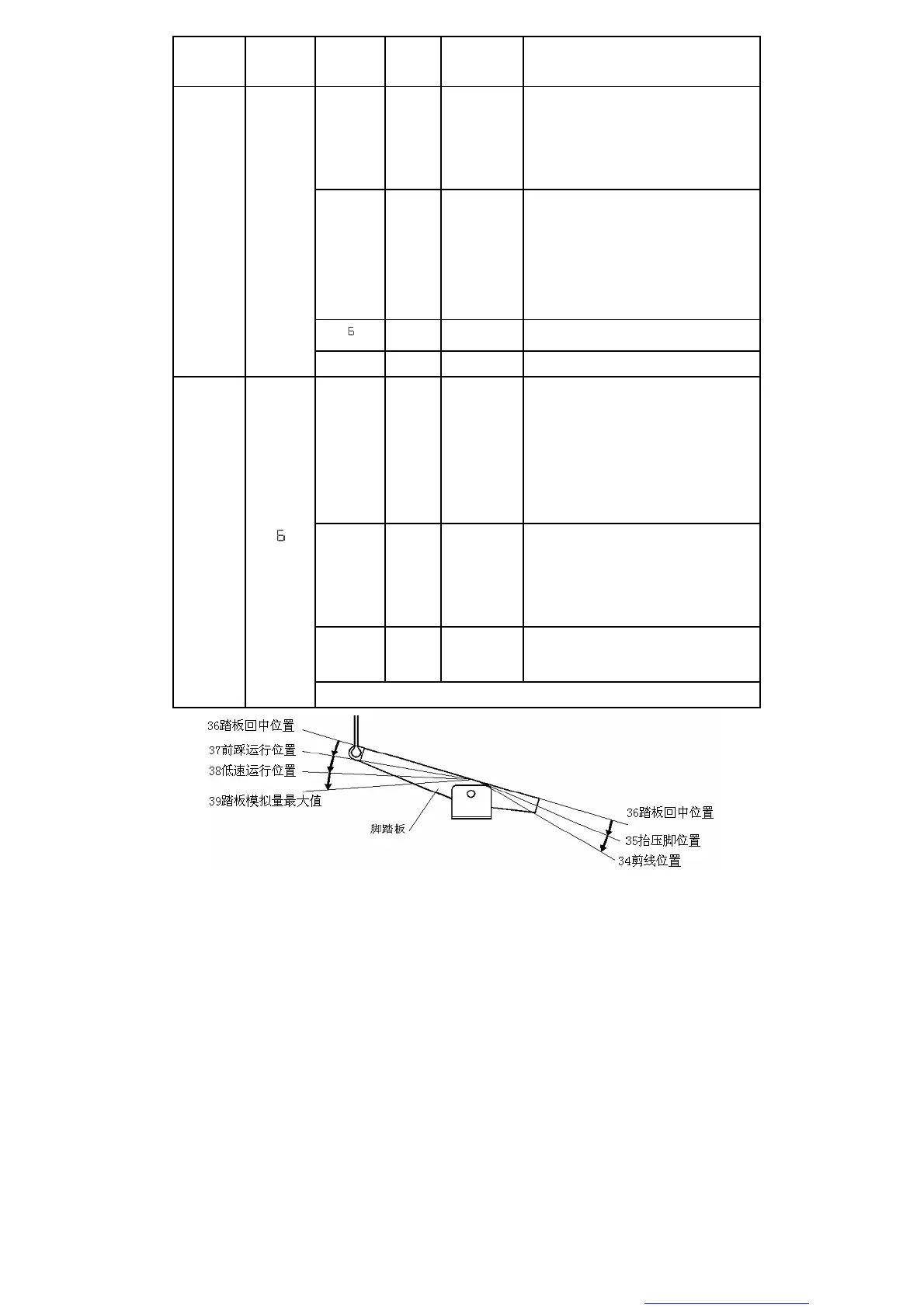
Rys. 2-1 Parametr działania pozycji pedału – schemat
10 16
You created this PDF from an application that is not licensed to print to novaPDF printer (http://www.novapdf.com)

Related product manuals