EasyManua.ls Logo

HER CHEE ATV-50 - Piston Ring Installation

HER CHEE ATV-50
57 pages
Print Icon
To Next Page IconTo Next Page
To Next Page IconTo Next Page
To Previous Page IconTo Previous Page
To Previous Page IconTo Previous Page
Loading...
7
3
CYLINDER HEAD / CYLINDER / PISTON
Operation / Parts Name Q’ty Remarks
1
2
3
Disassembly
Cylinder head
Nut of cylinder head
Cylinder head
Cylinder head gasket
4
1
1
WARNING: Loosing nut 2-3 times.
4
5
Cylinder
Cylinder
Cylinder gasket
1
1
WARNING: Don’t knock cooling fin.
WARNING: Clean and not damage
cylinder gasket of crank shaft
case.
6
7
8
9
10
Piston
Piston ring clip
Piston pin
Piston
Piston ring
needle bearing
2
1
1
2
1
Assembly
101
Operation with sequence in reverse of
disassembly.
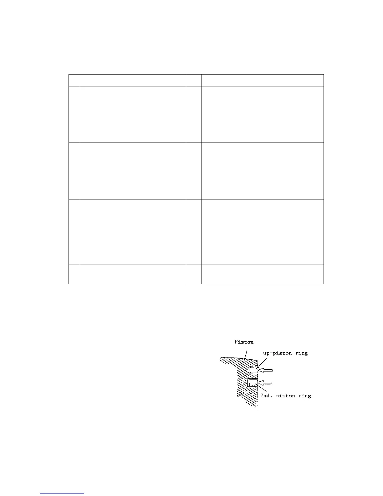
Installation of Piston Ring
Install top-piston ring & 2
nd
piston
ring on piston.
Do not scratch piston and do not bend
piston rings.
Remove carbon muck inside ring
ditch
and piston ring when not installed.
Be sure the rings rotate freely after
install into piston.
WARNING:
Change whole set of piston ring with
genuine parts.

Table of Contents

Related product manuals