EasyManua.ls Logo

HIKVISION DS-KD8102 - Installation of DS-KD8002-VM; Gang Box for DS-KD8002-VM; Wall Mounting with Gang Box of DS-KD8002-VM

HIKVISION DS-KD8102
107 pages
To Next Page IconTo Next Page
To Next Page IconTo Next Page
To Previous Page IconTo Previous Page
To Previous Page IconTo Previous Page
Loading...
Video Intercom Door Station·User Manual
14
5.2 Installation of DS-KD8002-VM
5.2.1 Gang Box for DS-KD8002-VM
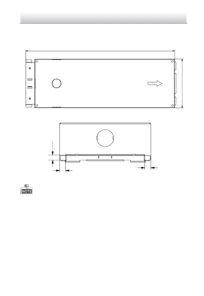
407.5
135
Figure 5-6 Front View
9
9
7.6
Figure 5-7 Overhead (Plan) View
The dimension of gang box for model DS-KD8002-VM door station is: 407.5 mm × 135
mm × 55 mm.
The dimensions above are for reference only. The actual size can be slightly larger
than the theoretical dimension.
5.2.2 Wall Mounting with Gang Box of DS-KD8002-VM
1. Chisel a hole in the wall for inserting the gang box. The size of the hole should be
larger than that of the gang box. The suggested size of hole is 136 (length) × 408.5
(width) × 55.5 (depth) mm.

Table of Contents

Related product manuals