EasyManua.ls Logo

HIKVISION DS-KD8102 - Installation of DS-KD6002-VM; Gang Box for DS-KD6002-VM; Wall Mounting with Gang Box of DS-KD6002-VM

HIKVISION DS-KD8102
107 pages
To Next Page IconTo Next Page
To Next Page IconTo Next Page
To Previous Page IconTo Previous Page
To Previous Page IconTo Previous Page
Loading...
Video Intercom Door Station·User Manual
17
5.3 Installation of DS-KD6002-VM
5.3.1 Gang Box for DS-KD6002-VM
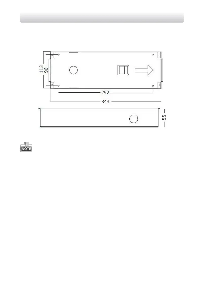
Figure 5-12 Front and Side View
The dimension of gang box for model DS-KD6002-VM door station is: 343(length)×
113(width)×55(depth) mm.
The dimensions above are for reference only. The actual size can be slightly different
from the theoretical dimension.
5.3.2 Wall Mounting with Gang Box of DS-KD6002-VM
Steps:
1. Chisel a hole in the wall for inserting the gang box. The size of the hole should be
larger than that of the gang box. The suggested size of hole is 343.5 (length) × 113.5
(width) × 55.5 (depth) mm.
2. Insert the gang box into the hole and fix it with 4 PA4 screws.

Table of Contents

Related product manuals