EasyManua.ls Logo

Hitachi RAW-35RHC - How to Run the Indoor Unit with the Outdoor Unit Test Switch

Hitachi RAW-35RHC
94 pages
Print Icon
To Next Page IconTo Next Page
To Next Page IconTo Next Page
To Previous Page IconTo Previous Page
To Previous Page IconTo Previous Page
Loading...
6 Troubleshooting
Outdoor unit
SMGB0135 rev.0 - 06/2020
68
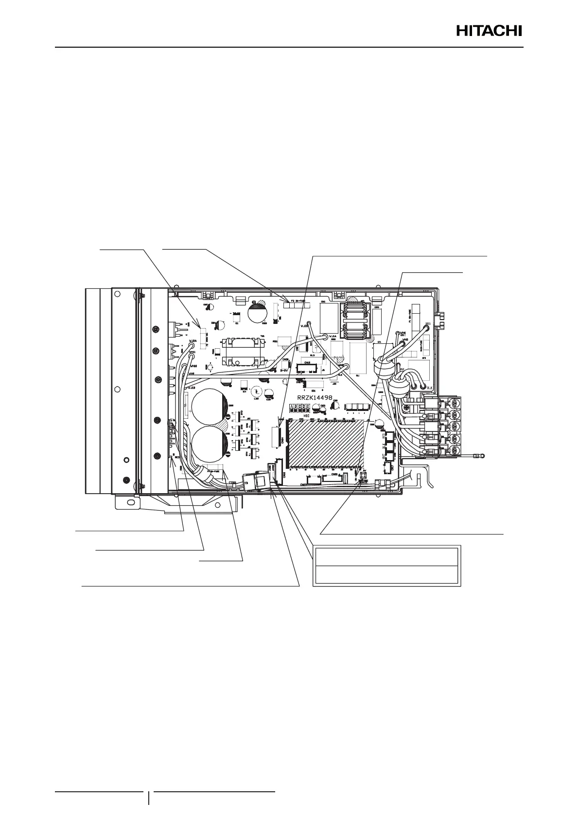
6.1.6 How to run the indoor unit with the outdoor unit test switch
If the indoor electrical parts is out of order and if you wish to run the outdoor unit.
1 Turn on the outdoor terminal boards L and N (220-230 V AC).
2 Conrm that the “LD301” blinks once from the terminal side of the outdoor unit. Afterwards (when about 30 sec 
elapses after the power turns on), conrm that the “LD301” changes to blinking 9 times (communication error).
3 When the “LD301” is blinks 9 times, if you press the test switch, the “LD301” lights up.
4 When you press the test switch again for 1 sec or longer, the unit stops the operation.
? NOTE
If you press the test switch for 5 or longer, the self-check diagnosis starts. In this case, turn the power off and start the procedure from
1 again.
For the initialization of the expansion valve, it may take 1 min until the operation starts.
F2
F3
F4
Outdoor fan connector
Test / Service switch
Compressor connector
N (DC V-)
P (DC V+)
Self check (JW001)
Self check (JW002)
(CN24)
LD301
! CAUTION
Applying power directly to the outdoor unit will cause a rush current to stress the outdoor unit.
Before performing any of the service operations described in this chapter turn all the main switches off and the place security lockers
or convenient warning indicators in order to prevent them from turning on accidentally.
Do not under any circumstances run the product for more than 5 minutes.
Doing work with the compressor connector removed will cause the LD301 to blink 4 times. It will not start.
For another test run, turn off the breaker and turn it back on. (The test switch is accepted only once after power-on. After operation by
remote control, it is not accepted.)
When the operation with the test switch is over, turn off the breaker and set the connectors back.

Table of Contents

Related product manuals