EasyManua.ls Logo

Hitachi SJ200 Series

Hitachi SJ200 Series
276 pages
To Next Page IconTo Next Page
To Next Page IconTo Next Page
To Previous Page IconTo Previous Page
To Previous Page IconTo Previous Page
Loading...
Step-by-Step Basic Installation
Inverter Mounting
and Installation
2–12
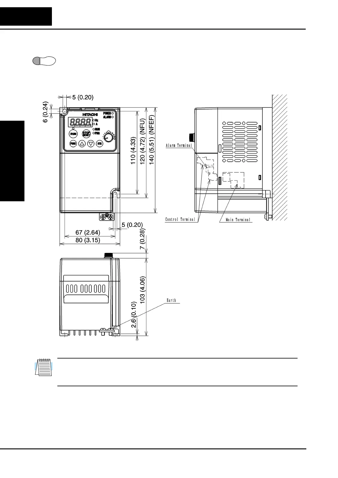
Check Inverter Dimensions
Step 4: Locate the applicable drawing on the following pages for your inverter.
Dimensions are given in millimeters (inches) format.
NOTE: Some inverter housings require two mounting screws, while others require four.
Be sure to use lock washers or other means to ensure screws do not loosen due to
vibration.
4
SJ200–002NFEF, –002NFU

Table of Contents

Other manuals for Hitachi SJ200 Series

Related product manuals