EasyManua.ls Logo

Hussmann Q3 - Page 25

Hussmann Q3
45 pages
Print Icon
To Next Page IconTo Next Page
To Next Page IconTo Next Page
To Previous Page IconTo Previous Page
To Previous Page IconTo Previous Page
Loading...
25
HUSSMANN_GDF_1.1 SHEET SIZE D
MATERIAL - N/A
THIRD
ANGLE
PROJECTION
UNLESS OTHERWISE SPECIFIED DIMENSIONS ARE IN INCHES.
DRAWN BY -CRAIG BOOREY
APPROVED BY - CRAIG BOOREY
TOLERANCES ARE:
DECIMALS .XX
u
.03, .XXX
u
.010
ANGLES
u
2
v
DATE DRAWN - 1-12-18
ECN-CAP-0010812
REVIEWED BY -CRAIG BOOREY
REF -
3053568
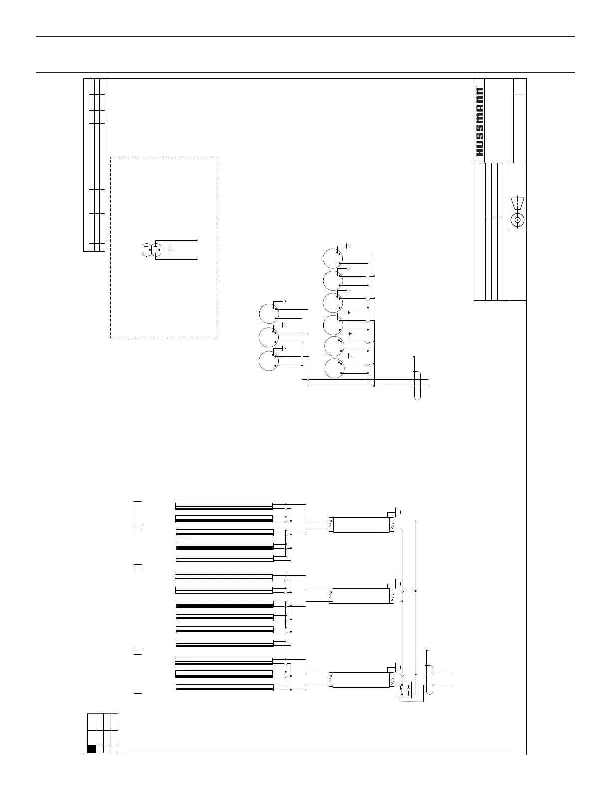
DIAGRAM-Q3-MV-BC-12R
W/AK-CC-210 FOR /MISTING
SYSTEM
REV ECN DATE REVISION DESCRIPTION REV BY CHKD BY APPR BY
A ECN-CAP-0010812 2018/01/12 RELEASED TO PRODUCTION CB CB CB
B ECN-CAP-0011188 2018/02/02 REMOVED AIR SWEEP HEATER CB CB CB
REVISION HISTORY
NOTES:
CASE MUST BE GROUNDED
WHEN PASSING WIRES THROUGH METAL HOLES A GROMMET MUST BE USED
B
SHEET 1 OF 2
CIRCUIT #1
L1
LOADING
6.4
120V
SHELVES
CANOPY-FRONT
LIGHT CIRCUIT
1.37A 148.6W @ 120V
MCA= 1.21A
MOP= 15A
~120 VAC - 60 Hz.
LED DRIVER
BUNDLE
ORANGE
BLK #14
WHT#14
L1 N
RED +
BLUE -
BUNDLE
BROWN
~120 VAC - 60 Hz.
M M
M
M
MCA= 1.7A
MOP= 15A
L1 N
BLACK #14
WHITE #14
AIR SWEEP FAN
(3) 0404551
15W .20A @120VAC
EVAP FAN MOTOR
(6) 0477653
4W .12A @120VAC
M
M
4' L.E.D. LIGHT HO
LIGHT SWITCH
TIPPETTE
125-01-0311
M
M
LED DRIVER
RED +
BLUE -
4' L.E.D. LIGHT
M
RJ-45 NETWORK JACK
125-01-0202
INCOMING POWER
~120 VAC -60 Hz
GFCI DUPLEX
125-01-3178
BLK # 14
WHT # 14
GRN # 14
ALL SINGLE
RECEPTACLES TO BE
TIED TO DUPLEX GFCI
RECEPTACLE
BUNDLE
YELLOW
CIRCUIT #2
4' L.E.D. LIGHT
4' L.E.D. LIGHT
4' L.E.D. LIGHT
4' L.E.D. LIGHT
4' L.E.D. LIGHT
CIRCUIT #3
4' L.E.D. LIGHT HO
4' L.E.D. LIGHT HO
CANOPY-REAR
LED DRIVER
RED +
BLUE -
3' L.E.D. LIGHT
3' L.E.D. LIGHT
3' L.E.D. LIGHT
6' L.E.D. LIGHT
6' L.E.D. LIGHT
LEDGE
L
Electrical Wiring Diagram (Cont’d)

Related product manuals